Modernidad arquitectónica y liturgia comunitaria. El caso de Sant Sebastià del Verdum en Nou Barris, Barcelona
Architectural Modernity and Community Liturgy. The Case of Sant Sebastià del Verdum in Nou Barris, Barcelona
Alba Arboix-Alió · Universitat de Barcelona (España) · alba.arboix@gmail.com · https://orcid.org/0000-0003-0430-1751
Recibido: 27/06/2025
Aceptado: 09/09/2025
Este artículo analiza el caso de la parroquia de Sant Sebastià del Verdum, en Barcelona, como ejemplo singular de arquitectura religiosa inscrita en la modernidad canónica. A partir de documentación inédita y fuentes archivísticas, se estudian tres momentos clave del conjunto parroquial: la iglesia provisional (1959), la iglesia definitiva (1968) y el contexto urbano y social en el que ambas se inscriben. Diseñadas por el equipo MBM (Martorell, Bohigas, Mackay), ambas construcciones incorporan soluciones alineadas con el ideario del Movimiento Moderno. En el caso del templo definitivo, además, se adapta a las directrices litúrgicas del Concilio Vaticano II. El texto propone una lectura arquitectónica y social de estos espacios, en los que convergen voluntad estética, compromiso técnico y respuesta a las necesidades espirituales y comunitarias de una población obrera de nueva implantación. Sin duda, un caso paradigmático de arquitectura sacra moderna, motor de estructuración urbana y cohesión comunitaria vecinal.
Arquitetura sacra moderna, MBM, Sant Sebastià, Verdum, Barcelona
This article analyses the Sant Sebastià del Verdum parish in Barcelona as a unique example of religious architecture within canonical modernity. Based on unpublished documentation and archival sources, it examines three key moments: the provisional church (1959), the definitive church (1968), and the urban and social context in which both were embedded. Designed by the MBM team (Martorell, Bohigas, Mackay), both buildings reflect principles of the Modern Movement. The final church also responds to the liturgical directives of the Second Vatican Council. The article offers an architectural and social reading of these spaces, where aesthetic vision, technical commitment, and attention to the spiritual and communal needs of a newly settled working-class population converge. Sant Sebastià stands as a paradigmatic case of modern sacred architecture that contributed to urban structure and fostered strong community cohesion.
Modern Sacred Architecture, MBM, Sant Sebastià, Verdum, Barcelona
En una ciudad como Barcelona —conocida por su tradición crítica con el régimen franquista y por su marcada tendencia hacia la laicidad—, la arquitectura religiosa continúa desempeñando un papel destacado en el desarrollo de la modernidad (Gómez-Val 2012). Algunos de estos edificios han sido ya reconocidos por DOCOMOMO Ibérico, entidad dedicada a la documentación y protección del patrimonio arquitectónico moderno. [1] Sin embargo, otras iglesias levantadas en ese mismo periodo —como es el caso de Sant Sebastià del Verdum— siguen siendo escasamente conocidas y permanecen fuera de los círculos patrimoniales.
Este artículo se enmarca en el contexto de una investigación previa más amplia referida a las 132 iglesias parroquiales existentes dentro de los límites municipales de la ciudad de Barcelona, abordadas y analizadas en la tesis doctoral de la autora (Arboix-Alió 2016 y 2023). A partir de este trabajo de investigación, se propone aquí efectuar un estudio monográfico sobre uno de los casos más representativos del patrimonio arquitectónico moderno en la ciudad de Barcelona: la iglesia de Sant Sebastià del Verdum, proyectada por el equipo Martorell-Bohigas-Mackay (MBM). El análisis se basa en material inédito procedente de diversos archivos y se complementa con una contextualización urbana y social del barrio del Verdum, donde el conjunto parroquial ha desempeñado un papel central en la estructuración comunitaria del territorio. [2]
El estudio del templo y del edificio provisional que lo precedió permite visibilizar historias personales y colectivas vinculadas a arquitecturas que, en su momento, encarnaron el imaginario litúrgico de una confesión, la visión artística de unos arquitectos comprometidos con la modernidad y el sentir comunitario de una población obrera recientemente asentada. De este modo, se defiende la necesidad de preservar estas arquitecturas no sólo por su valor estético y tipológico, sino también por su capacidad de narrar procesos simultáneos de transformación urbana, social y espiritual.
La parroquia de Sant Sebastià, ubicada en el barrio del Verdum (distrito de Nou Barris), constituye un caso paradigmático para poder estudiar el cambio de paradigma arquitectónico introducido por el Concilio Vaticano II en la configuración espacial de los templos católicos (Fernández-Cobián 2019). Se trata de uno de los primeros ejemplos realizados en Barcelona del modelo de iglesia postconciliar que, a partir de la década de 1960, comenzó a redefinir los códigos litúrgicos y espaciales de la arquitectura sacra.
El proyecto de la iglesia diseñada por el estudio MBM —formado por Josep Maria Martorell, Oriol Bohigas y David Mackay— coincidió en el tiempo con la promulgación del documento Sacrosanctum Concilium (1963). Aunque el diseño inicial ya se alineaba con los principios del Movimiento Moderno —sobriedad, funcionalidad, racionalidad—, el equipo adaptó la disposición interior a las nuevas directrices litúrgicas sin modificar la envolvente del edificio. El altar, inicialmente previsto en el extremo de la nave, fue trasladado al centro y girado 90°, en un gesto que transformó radicalmente la jerarquía espacial del templo (Fig. 01).

Fig. 01. Croquis de la disposición del mobiliario en el interior del proyecto del templo de Sant Sebastià antes y después del Concilio Vaticano II.
Esta reconfiguración permitió disponer los bancos en forma de U, reducir la direccionalidad axial y fomentar una experiencia litúrgica más horizontal, participativa y comunitaria. El suelo de la nave se resolvió con una sutil topografía descendente en forma de graderío, de manera que el altar —situado en el punto más bajo y ligeramente elevado sobre un podio— actuaba como foco visual desde todos los ángulos. Este gesto evocaba la disposición del anfiteatro, rodeando el espacio celebrativo con la asamblea congregada, pero donde el efecto buscado, más que el de potenciar la verticalidad —puesto que el desnivel era mínimo—, era huir de la linealidad espacial que se otorgaba a las iglesias hasta la fecha y apostar por una disposición más apaisada y transversal.
Finalizada en 1968, la iglesia fue rápidamente reconocida como una obra de referencia dentro de la arquitectura religiosa postconciliar. Su contundente austeridad material y su modernidad expresiva sintetizan una manera singular de entender el espacio sacro. Sin embargo, costó hacérselo entender a los feligreses habituales y a los vecinos del barrio, quienes al principio no entendían lo que veían. Poco a poco, e influenciados probablemente al ver que personalidades cultas iban a visitarla y la elogiaban, fueron educando su gusto y acabaron por ser capaces de valorarla. [3]
El edificio fue construido mostrando honestamente los materiales —muros de ladrillo visto, vigas de acero, bóvedas tabicadas y carpinterías de madera maciza—, sin recurrir a revestimientos superfluos. La estructura metálica reticular que cubre el volumen principal no solo permite salvar grandes luces, sino que confiere a la obra una cubierta de gran expresividad plástica.
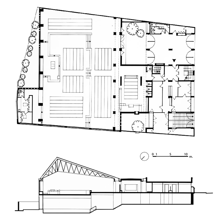
La planta del conjunto adopta una forma rectangular oblicua, adaptada a la geometría de la parcela, e integra de manera compacta el templo, el atrio de acceso y las dependencias parroquiales. Aprovechando la caída natural del solar, el programa se organiza en dos niveles: uno superior destinado al culto litúrgico y otro inferior concebido como espacio polivalente para actividades cívicas y sociales. Esta disposición refuerza la vocación del edificio como equipamiento de proximidad y centro de cohesión vecinal (Fig. 04).

Fig. 04. Planta y sección de la propuesta definitiva realizada por MBM para la iglesia parroquial de Sant Sebastià, en el barrio del Verdum del distrito de Nou Barris de Barcelona, construida en el interior de manzana de la calle Viladrosa, 96.
A diferencia de otros templos contemporáneos, Sant Sebastià se caracteriza por una atmósfera interior sobria y cuidadosamente regulada (Blanco 2011). La iluminación natural penetra por la cumbrera y por el perímetro de la cubierta mediante lucernarios lineales, así como a través de vitrales y aperturas junto a patios interiores. Este tratamiento lumínico favorece una experiencia sensorial propicia al recogimiento (Fig. 06).

Fig. 05. Patio de entrada de Sant Sebastià.
Fig. 06. Interior de la iglesia de Sant Sebastià, con vista hacia el altar.
El emplazamiento del edificio, en un interior de manzana de la calle Viladrosa, refuerza su carácter discreto (Fig. 03). Apenas visible desde el espacio público, el templo adopta un lenguaje simbólico contenido: la iconografía religiosa desaparece casi por completo, dejando que la comunidad reunida sea la que otorgue sentido al espacio. Durante décadas, sólo una pequeña cruz de hierro forjado, pintada del mismo color granate que la reja de entrada, señalaba tímidamente su carácter sacro. Una vez dentro, el acceso al conjunto sacro se realiza a través de un atrio porticado construido con los mismos materiales que el templo (Fig. 05).

Fig. 03. Implantación urbana de Sant Sebastià en la calle Viladrosa 96, en el barrio del Verdum.
El proyecto original contemplaba tres plantas adicionales sobre la planta baja de las dependencias parroquiales, que no llegaron a ejecutarse por falta de recursos. Décadas después, un acuerdo entre el Arzobispado y el Ayuntamiento propuso completar el volumen con una combinación de usos sociales y parroquiales. No obstante, la presión vecinal detuvo su desarrollo. Como expresaba el propio Josep M. Martorell:
Es una lástima que ahora que todo el antiguo barrio de las ‘Viviendas del Gobernador’ se está dignificando, sea la oposición vecinal la que impida ofrecer un servicio social y completar un tramo de ciudad, cerrando la fachada de la calle Viladrosa con la construcción de los pisos previstos desde los años sesenta (Cuadrench 2008, 85). [4]
En 2020, finalmente esto se logra, pues se levanta un nuevo equipamiento: un edificio del grupo asistencial Som Via para personas con discapacidad intelectual y autismo. La calle queda así definida en toda su sección. Una imagen de Sant Sebastià en el zócalo del edificio, obra del escultor Lau Feliu Maspons, junto con una cruz en la parte alta, son la iconografía encargada de advertir de lo que pasa en el interior de esta manzana.
El conjunto parroquial de Sant Sebastià no puede entenderse sin considerar el contexto urbano y social en el que se inserta. El barrio del Verdum, situado en el centro geográfico del actual distrito de Nou Barris y dentro de los límites municipales de Barcelona, fue, hasta principios del siglo XX, un territorio prácticamente despoblado, caracterizado por terrenos agrícolas, viñedos y áreas boscosas (Fig. 02). [5]

Fig. 02. Fotografía aérea del barrio del Verdum a mediados del siglo pasado, cuando ya se habían construido las Casas del Gobernador y las de la Obra Sindical del Hogar.
El proceso de ocupación comenzó en 1917, como consecuencia de las oleadas migratorias que llegaron a la ciudad (Ferrer 1996). Las antiguas barracas de viña empezaron a ser habitadas, y de forma progresiva, surgieron nuevas construcciones precarias. La primera ocupación espontánea se documenta con motivo de la Exposición Internacional de 1929. No obstante, será el Congreso Eucarístico Internacional de 1952 el que marque un punto de inflexión definitivo en la transformación del territorio. La celebración del congreso exigía liberar la plaza de Pío XII —escenario previsto para el acto final— de las barracas que la ocupaban. Para reubicar a sus habitantes, el entonces gobernador civil de Barcelona, Felipe Acedo Colunga, impulsó la construcción de un grupo de viviendas al norte de la ciudad, entre los barrios de la Prosperitat y las Roquetes, muy cerca de los antiguos cobertizos rurales. Este nuevo conjunto residencial, conocido como las Casas del Gobernador, fue concebido inicialmente como solución provisional, pero acabó consolidándose como tejido urbano estable durante décadas (Sagarra, et al. 2003).
El proyecto preveía unas mil viviendas distribuidas en bloques de planta baja más tres pisos, organizadas en una trama regular delimitada por las calles Viladrosa, Joaquim Valls, Seixanta Metres (hoy Via Favència) y Fuente de Cañellas (actual Almansa). Sin embargo, debido a su carácter temporal, las edificaciones carecían de servicios básicos. No disponían de agua corriente (se instalaron cisternas en las cubiertas y lavaderos públicos en la calle) ni de infraestructuras sanitarias dignas (Bohigas 1986). La fragilidad estructural de las viviendas —construidas con materiales pobres y soluciones técnicas de urgencia— acentuaba la imagen de precariedad crónica del conjunto (Fig. 07).
Aunque el plan original contemplaba tres fases de construcción para colocar tanto a los desalojados como a una parte de la creciente población migrante llegada del resto del Estado, únicamente se ejecutó la primera fase. Las demás parcelas fueron cedidas a la Obra Sindical del Hogar (OSH), organismo encargado de completar el nuevo barrio con bloques adicionales en las zonas occidentales. Así se consolidó el barrio del Verdum, entre finales de los años cincuenta y mediados de los sesenta (Fig. 08).

Fig. 07. Las Casas del Gobernador alrededor de la plaza entonces denominada Pare Lluís Artigues.
Fig. 08. Las primeras construcciones de la Obra Sindical del Hogar en el barrio del Verdum.
El contraste con otras operaciones urbanas contemporáneas —como el Barri del Congrés Eucarístic— pone de manifiesto la ausencia de planificación urbana de calidad en el Verdum. Mientras que en el Congrés se diseñó un espacio jerarquizado con una clara centralidad simbólica —la iglesia de Sant Pius X presidiendo una plaza sobre el eje de la calle Felip II—, en el Verdum se reprodujo de forma monótona un mismo bloque habitacional con acceso único y pasillo central, sin tener en cuenta criterios de orientación, ventilación cruzada ni articulación del espacio vacío (VVAA 2011).
Esta precariedad se vio agravada por el crecimiento incontrolado de otras áreas adyacentes, como la barriada informal al pie del Turó de les Roquetes, que se sumó a las Casas del Gobernador, a los bloques de la OSH y a las primeras construcciones de la zona del Xarlot (Solà-Morales 2008). A mediados de los años sesenta, el barrio contaba ya con aproximadamente 50.000 habitantes distribuidos en unas 10.000 familias, en su mayoría procedentes de Andalucía y Galicia, con un poder adquisitivo muy reducido pero más creyentes y practicantes que los habitantes autóctonos. Las recopilaciones históricas generales del Archivo Histórico de Roquetes–Nou Barris confirman que gran parte de la población activa trabajaba en sectores industriales o en la construcción, y era habitual la incorporación laboral infantil a partir de los doce años.
Es precisamente en este contexto de alta densidad, marginalidad urbana y carencia de equipamientos donde se hace urgente la construcción de una iglesia parroquial. La iniciativa surge principalmente de la diócesis de Barcelona que, bajo el impulso del arzobispo Gregorio Modrego Casaús, erige la parroquia de Sant Sebastià. Una vez consta la existencia de una nueva demarcación parroquial, es preciso buscar el emplazamiento para la construcción de la iglesia. El Ayuntamiento cede el espacio a la Iglesia y le da soporte logístico para los permisos. Por su lado, fuentes diocesanas y parroquiales son las que asumen la mayor parte del coste, convirtiéndose en promotores principales del templo (VVAA 1965).
El solar escogido, en el número 96 de la calle Viladrosa, ocupa un interior de manzana al sureste del conjunto fundacional, rodeado por almacenes y talleres de pequeño formato. Este emplazamiento, aunque refuerza el carácter discreto y periférico del templo, consolida también su función como infraestructura de centralidad comunitaria.
Pero antes de la construcción del templo definitivo, el barrio del Verdum contó con una iglesia provisional proyectada por los entonces jóvenes arquitectos Oriol Bohigas y Josep Maria Martorell en 1958. Esta experiencia inicial no solo anticipó muchas de las soluciones aplicadas posteriormente, sino que resume con claridad los condicionantes sociales, litúrgicos y arquitectónicos del periodo.
El tándem Bohigas-Martorell provenía del Grup R, que ya tenía relación con la Iglesia, especialmente evidente y pública a partir del congreso Conversaciones de Arquitectura Religiosa, organizado por el Patronato Municipal de la Vivienda del Ayuntamiento de Barcelona en la sede del Colegio Oficial de Arquitectos de Cataluña y Baleares en 1963. El sacerdote e historiador Juan Ferrando Roig fue un personaje clave en su implicación, ya que les puso en contacto con la diócesis y con el movimiento renovador que buscaba arquitecturas litúrgicas modernas (VVAA 1965). Aunque ambos arquitectos, por más que les gustara ser polémicos y críticos con la religión, por herencia familiar y posición social nunca se habían alejado de ella. [6]
La iglesia provisional la inauguró en 1959 el obispo auxiliar de Barcelona, Narcís Jubany, en el cruce de la actual Via Favència con la calle Artesania, en el sector occidental del conjunto residencial, y fue una de las primeras construcciones de carácter público y comunitario del barrio. El solar, que estaba destinado a zona verde para el barrio por la Obra Sindical del Hogar, lo cedió el Ayuntamiento de Barcelona al Obispado. Pero su situación en el extremo del barrio dificultaba el acceso de muchos vecinos, y no tenía la posición central que un equipamiento de estas características necesita para su inserción social (Lois 2014).
Conviene apuntar que la actividad parroquial se había iniciado un año antes en espacios improvisados: un antiguo bar y sala de baile acogió las primeras celebraciones. Las misas más concurridas se oficiaban directamente en la calle, sin infraestructura alguna. El culto se realizaba en solares vacíos, adosados a medianeras, que actuaban como fondo escenográfico improvisado. Sobre ellos se colocaba una sencilla mesa altar, y los asistentes —vecinos del barrio— llevaban sus propias sillas desde casa (Fig. 9-11).

Fig. 09-11. Imágenes de diversos actos religiosos celebrados al aire libre, con las fachadas de los edificios como fondo escenográfico; una mesa hace las funciones de altar de urgencia; y los vecinos traen sus propias sillas para sentarse.
Esta práctica litúrgica espontánea remite al sentido originario del término ecclesia como asamblea, antes que como edificio, y pone en valor la dimensión comunitaria de la reunión por encima de cualquier monumentalidad arquitectónica. La comunidad reunida, más que el espacio físico, era la que otorgaba sentido al acto religioso (Sterken 2013). Y es que en los nuevos barrios periféricos de Barcelona, con habitantes migrantes unidos por la religión católica, el papel de las parroquias excedía ampliamente la función espiritual. Ante la falta de equipamientos y la heterogeneidad social del territorio, las iglesias asumían funciones cívicas, sociales y educativas (Zito 2019).
La parroquia de Sant Sebastià fue concebida también como infraestructura de centralidad barrial: en torno al templo se organizaron una guardería, un centro juvenil, un aula de formación para adultos, un dispensario médico, un cine parroquial y hasta un campo de fútbol. [7] Así, la iglesia provisional no solo respondió a una necesidad inmediata de culto, sino que encarnó la convergencia de tres dinámicas transformadoras: (1) la emergencia social derivada de la precariedad urbana; (2) la renovación litúrgica promovida por el Vaticano y consolidada con el Concilio; (3) y la afirmación de una nueva arquitectura moderna en Cataluña, tras los años más duros de la posguerra franquista.
Desde un punto de vista técnico, el proyecto definitivo de iglesia provisional —tras dos propuestas previas— se resolvió mediante una solución de mínimos, articulada en dos cuerpos rectangulares: uno mayor, destinado a la nave del templo, y otro de menor escala, para la sacristía y dos despachos parroquiales. Ambos volúmenes estaban conectados mediante un paso cerrado con celosías de hormigón (Lois 2014).
La nave era un espacio ligero, diáfano y prefabricado; en cambio, el volumen administrativo se resolvía como un bloque compacto, con muros de ladrillo enlucido y encalado. Una gran cruz de hormigón de cuatro brazos presidía el conjunto desde el acceso, otorgándole identidad simbólica (Fig. 12).

Fig. 12. Planta de la propuesta definitiva realizada por Bohigas y Martorell para la iglesia provisional de Sant Sebastià.
Todo el complejo se construyó en apenas tres meses y estaba modulado en una retícula isótropa de 1,5 x 1,5 m. La estructura principal era de madera; la cubierta, a dos aguas, de fibrocemento; y los cerramientos, de paneles ligeros de viruta de madera y cemento ensamblados en seco. El pavimento se resolvía con baldosa mecánica y el falso techo con listones de madera. El presbiterio, elevado sobre una tarima, integraba un paramento curvo de ladrillo y un altar de hormigón visto, igual que la pila bautismal.
El contraste entre la ligereza constructiva del barracón litúrgico y la solidez de los elementos de culto —especialmente la gran cruz aislada— revelaba una clara voluntad simbólica: la arquitectura provisional, pese a su fragilidad material, adquiría fuerza expresiva a través de la sencillez y la dignidad de sus componentes esenciales (Fig. 13). Para muchos vecinos, aquella cruz perdura aún hoy como símbolo fundacional del barrio.

Fig. 13. Exterior del templo provisional de Sant Sebastià, fotografiado por Francesc Català-Roca.
Valga aquí la reflexión —aunque exceda los límites del presente artículo— recogida en las crónicas de la época conservadas en el Archivo Histórico de Roquetes–Nou Barris, sobre el debate municipal en torno a la idoneidad de las construcciones religiosas provisionales, surgido con motivo de la edificación de este templo. Quienes las defendían destacaban las ventajas de disponer rápidamente de un lugar de culto; en cambio, sus detractores consideraban que su existencia alargaba el proceso de consolidación de un equipamiento parroquial completo. Estos últimos proponían como alternativa la construcción por fases, comenzando por un semisótano que pudiera funcionar como capilla y sala polivalente mientras se levantaban los espacios definitivos. En cualquier caso, en la parroquia de Sant Sebastià se optó por una construcción provisional, y gracias a esta decisión, el barrio del Verdum cuenta hoy con el honor de haber tenido dos de los templos más avanzados de su tiempo y de haber promovido una actitud de coordinación y participación comunitaria. [8]
El estudio del conjunto parroquial de Sant Sebastià del Verdum —en sus dos fases, provisional (1959) y definitiva (1968)— permite visibilizar un caso paradigmático de evolución de la arquitectura sacra en el marco del posconcilio, así como de su capacidad para actuar como catalizador de cohesión social y urbana en contextos periféricos marcados por la precariedad.
Ambas iglesias, proyectadas por el equipo MBM, constituyen ejercicios ejemplares de funcionalidad, economía y sobriedad formal (Fig. 14-15). A través de ellas se ilustra con claridad el cambio de paradigma espacial y simbólico promovido por el Concilio Vaticano II. Lejos de toda monumentalidad decorativa, estas arquitecturas adoptan los valores del Movimiento Moderno —materialidad sincera, racionalidad estructural, claridad constructiva— y los integran con sensibilidad en los nuevos requerimientos litúrgicos y comunitarios.

Fig. 14. Interior del templo provisional de Sant Sebastià, fotografiado por Francesc Català-Roca.

Fig. 15. Interior del templo definitivo de Sant Sebastià, fotografiado por Francesc Català-Roca.
En realidad, Oriol Bohigas y Josep Maria Martorell en la primera ocasión, y el trío completo Martorell-Bohigas-Mackay en la segunda, proponen dos construcciones mínimas pero muy dignas, tal como ellos entienden que debería ser todo edificio sacro. Y es que —parafraseando las palabras de Oriol Bohigas en la tercera jornada de las Conversaciones de arquitectura religiosa del año 1963— un templo es, ante todo, una buena obra de arquitectura, como cualquier otra. Es decir, un edificio que respeta las leyes tectónicas, constructivas, económicas, programáticas y temporales de la disciplina, que las optimiza a través del oficio y las sublima mediante la poesía. Por eso, lo esencial es que sea un buen arquitecto, bien arraigado en su tiempo, quien construya un templo. Porque los problemas de la arquitectura eclesiástica son exactamente los mismos que los de cualquier otra obra de arquitectura, y no merece la pena establecer tantas diferencias (VVAA 1965).
En cualquier caso, el análisis revela el papel central que la arquitectura religiosa podía asumir en un contexto de urbanización acelerada y de planificación institucional deficitaria. En ausencia de equipamientos básicos, la parroquia de Sant Sebastià desempeñó un rol cívico fundamental, albergando actividades educativas, sanitarias, culturales y recreativas que articularon el tejido comunitario del barrio del Verdum.
Desde una perspectiva patrimonial, este tipo de arquitectura moderna y religiosa sigue siendo escasamente reconocida y protegida, a pesar de su notable valor arquitectónico, histórico y social. Su estudio invita a revisar el relato hegemónico de la modernidad arquitectónica barcelonesa, incorporando casos periféricos, comunitarios y religiosos que han quedado al margen del discurso canónico. En este sentido, se hace urgente el desarrollo de nuevas herramientas críticas y políticas patrimoniales que posibiliten el reconocimiento, la preservación y la activación de estos espacios como parte fundamental del patrimonio urbano del siglo XX.
En definitiva, el caso de Sant Sebastià permite abordar de manera simultánea tres grandes líneas de reflexión: la transformación de la arquitectura sacra en el contexto de la modernidad postconciliar; la capacidad de los equipamientos religiosos para actuar como núcleos de cohesión social en barrios periféricos; y la necesidad de integrar estos ejemplos en los marcos patrimoniales y narrativos de la arquitectura moderna del siglo XX (Fig. 16).

Fig. 16. Interior de la iglesia de Sant Sebastià hacia 1965.
Quisiera agradecer la atención, amabilidad y ayuda recibida por Oriol Capdevila, arquitecto de MBM Arquitectes, así como al personal de los archivos citados en el texto y a los párrocos entrevistados en el curso de toda la investigación.
Arboix-Alió, Alba. et al. 2023. «Relevance of Catholic Parish Churches in Public Space in Barcelona: Historical Analysis and Future Perspectives». Buildings 13(6) 1370. https://doi.org/10.3390/buildings13061370.
Arboix-Alió, Alba. 2016. «Església i ciutat: el paper dels temples parroquials en la construcció de Barcelona». Universitat Politècnica de Catalunya. http://hdl.handle.net/2117/96263.
Blanco Agüeira, Silvia. 2011. «La arquitectura religiosa europea en el marco de la modernidad». Boletín Académico. Revista de investigación y arquitectura contemporánea 1: 18-26. https://doi.org/10.17979/bac.2011.1.0.959.
Bohigas Guardiola, Oriol. 1986. Reconstrucción de Barcelona. Ministerio de Obras Públicas y Urbanismo/Secretaría General Técnica.
Cuadrench Aragonés, Joan. 2008. Sant Sebastià de Verdum. Mig segle d’una parròquia de barri. 1958–2008. Tecfa Group.
Fernández-Cobián, Esteban. 2005. El espacio sagrado en la arquitectura española contemporánea. COAG.
Fernández-Cobián, Esteban. 2019. «La renovación litúrgica de las iglesias en España tras el Concilio Vaticano II». Actas de Arquitectura Religiosa Contemporánea 6: 84–113. https://doi.org/10.17979/aarc.2019.6.0.6231.
Ferrer i Aixalà, Amador. 1996. Els polígons de Barcelona. Universitat Politècnica de Catalunya.
Gómez-Val, Ricardo. 2012. «La construcción de templos parroquiales en Barcelona entre 1952 y 2000». Universitat Politècnica de Catalunya. http://hdl.handle.net/2117/94669.
Lois Alcázar, Sergi. 2014. «Una església d’urgència. la construcció del passat imperfecte de la perifèria de Barcelona». Universitat Ramon Llull. http://hdl.handle.net/20.500.14342/2737.
Sagarra i Trias, Ferrán et al. 2003. De les cases barates als grans polígons: el Patronat Municipal de l’Habitatge de Barcelona entre 1929 i 1979. Barcelona: Ajuntament de Barcelona.
Solà-Morales, Manuel de. 2008. Deu lliçons sobre Barcelona. Col·legi d’Arquitectes de Catalunya.
Sterken, Sven. 2013. «Dios viaja en autobús: La campaña de camiones-capilla de la Organización de Socorro a Sacerdotes Orientales, 1950-1970». Actas de Arquitectura Religiosa Contemporánea 3: 96–105. https://doi.org/10.17979/aarc.2013.3.0.5090.
VVAA. 1965. Conversaciones de arquitectura religiosa. Barcelona, del 8 al 11 de octubre 1963. Patronato Municipal de la Vivienda.
VVAA. 2011. Les Vivendes del Congrés Eucarístic de Barcelona. 1952-1962. UPC. https://hdl.handle.net/2117/15121.
Zito, Carla. 2019. «Las iglesias parroquiales, ¿patrimonio de la comunidad o de la diócesis? Intervenciones comunitarias y supervisión de las diócesis». Actas de Arquitectura Religiosa Contemporánea 6: 182–193. https://doi.org/10.17979/aarc.2019.6.0.6238.
Fig. 01, 03, 05-06. Archivo de la autora.
Fig. 02. Archivo de la autora. Plano base: Foto-planos de ciudades catalanas (1945-66), ICC.
Fig. 04. Gómez-Val 2012.
Fig. 07-08. Web del Centro de Estudios Populares y Archivo Histórico de Roquetes-Nou Barris, arxiuhistoric.blogspot.com.es, consultado el 20/06/2025.
Fig. 9-10. Archivo Parroquial de Sant Sebastià.
Fig. 12-13. Fernández-Cobián 2005.
Fig. 11, 14-15. Lois 2014.
Fig. 16. Archivo MBM.
[1]. En Barcelona ciudad sólo hay inventariados los casos de Santa Tecla y Sant Jeroni. https://docomomoiberico.com/edificios/
[2]. Se consulta el archivo del Arzobispado, el archivo parroquial, el archivo contemporáneo de la ciudad de Barcelona, el archivo histórico de Nou Barris y el archivo de MBM albergado en el archivo histórico del COAC. Así mismo, se mantienen conversaciones informales con el párroco de Sant Sebastià y con Oriol Capdevila, quien está ahora al frente del estudio MBM Arquitectes y a quien se le agradece la colaboración y ayuda para dar respuesta a alguna de las dudas planteadas.
[3]. Información aportada a la autora por el párroco de Sant Sebastià.
[4]. Traducción de la autora. La cita original, en catalán, es: «És una llàstima que ara que tot l’antic barri de les ‘Vivendes del Governador’ s’està dignificant, sigui la pressió veïnal la que eviti dues coses: oferir un servei social i acabar un tros de ciutat –un tram de façana del carrer Viladrosa-, tapant unes mitgeres amb la construcció dels pisos que falten a la parròquia des dels anys seixanta».
[5]. La viña es la única planta que puede cultivarse sin dificultad en este territorio, ya que tolera bien la fuerte pendiente de la ladera septentrional de Collserola. Sin restos de masías documentadas, las únicas construcciones que se levantaron en la zona hasta bien entrados los años veinte del siglo pasado fueron precisamente las barracas de viña, denominación que se daba a unos sencillos cobertizos de madera destinados a guardar los utensilios de cultivo.
[6]. Información proporcionada a la autora por Oriol Capdevila, quien está ahora al frente del estudio MBM Arquitectes, y que conocía estrechamente a los fundadores.
[7]. Otra iglesia parroquial que merece ser destacada por sus formas gaudinianas —es obra del discípulo de Gaudí Jordi Bonet Armengol— y que también refleja esta situación es la de Sant Medir, en el barrio de Sants. No es objecto del presente artículo adentrarse en esta parroquia, pero para más información se puede consultar la Tesis Doctoral de la autora (Arboix-Alió 2016).
[8]. No se han encontrado datos específicos de una comisión formal de obras para Sant Sebastià, pero consta que hubo participación comunitaria entre los vecinos y el párroco. Así se encuentra reflejado en fuentes académicas (Lois 2014) y así se lo ha contado el párroco actual del templo a la autora. Los vecinos y rectores del momento trabajaron estrechamente en la planificación y uso de los espacios parroquiales, tal y como era habitual en la arquitectura social que se practicaba en los polígonos barceloneses de los años 60. Sirva de apoyo a esta afirmación, que en el curso de la investigación que realicé sobre las 132 iglesias parroquiales de la ciudad de Barcelona, fue una constante que los párrocos de las iglesias construidas durante este período me contaran anécdotas de los vecinos ayudando a levantar con sus propias manos los templos, dedicando tiempo y esfuerzo para adelantar su inauguración.