Conciliación entre modernidad y tradición arquitectónica en el noroeste mexicano
El caso de la iglesia parroquial del Sagrado Corazón de Jesús en Hermosillo, Sonora (1950-59)
Reconciliation Between Modernity and Architectural
Tradition in Northwestern Mexico
The
Case of the Sacred Heart of Jesus Parish Church in Hermosillo, Sonora (1950-59)
Recibido: 29/11/2025
Aceptado: 21/01/2026
Edificado entre 1950 y 1959, el templo del Sagrado Corazón de Jesús significó la culminación del trabajo conjunto de fieles, agrupaciones de laicos y del entonces obispado de Sonora, por establecer la primera parroquia del siglo XX en las periferias urbanas, para atender a una creciente población migrante y de escasos recursos. Proyectado por José López Moctezuma, el templo presenta características de la arquitectura sacra tradicional y de la gramática formal y constructiva de la primera fase del Movimiento Moderno (MoMo). En el presente trabajo, primeramente, se ofrece un panorama contextual para explicar la situación de la Iglesia sonorense tras décadas de conflictos con el Estado, y las características socioculturales de las comunidades que participaron, con el liderazgo del obispo Juan Navarrete y otros presbíteros, en los trabajos de organización y edificación del templo y su decreto parroquial. Seguido, se ensayan ejercicios descriptivos e interpretativos de las cualidades tanto arquitectónicas como simbólicas de la edificación, ofreciéndose algunas observaciones finales a manera de conclusiones.
Arquitectura, catolicismo, Hermosillo, México, Movimiento Moderno.
Built
between 1950 and 1959, the Sacred Heart of Jesus Church represented the
culmination of the collaborative work of parishioners, lay groups, and the then
Diocese of Sonora to establish the first 20th-century parish on the urban
periphery, serving a growing migrant and low-income population. Designed by
José López Moctezuma, the church exhibits characteristics of traditional sacred
architecture and the formal and constructive grammar of the first phase of the
Modern Movement (MoMo). This paper first provides a contextual overview to
explain the situation of the Church in Sonora after decades of conflict with
the State, and the sociocultural characteristics of the communities that
participated, under the leadership of Bishop Juan Navarrete and other priests,
in the organization and construction of the church and its establishment as a
parish. Following this, descriptive and interpretive analyses of the building’s
architectural and symbolic qualities are undertaken, and some final
observations are offered as conclusions.
Architecture,
Catholicism, Hermosillo, México, Modern Movement.
El estado de Sonora, localizado en el extremo noroeste de México, es el segundo en extensión geográfica con 179,355 km² —aproximadamente al 9% de la superficie del país—, compartiendo con el de Arizona 588 kilómetros de frontera. Aunque presenta diversos ecosistemas, que van del costero en el litoral del Golfo de California al de montaña en la Sierra Madre Occidental, destacan el de clima cálido seco a muy seco que afecta al 94% del territorio, con temperaturas estivales cercanas a los 50° C (Fig. 01). El territorio de la actual ciudad capital estuvo ocupado desde 1700; el asentamiento formal se fundó en 1741 como San Pedro de la Conquista del Pitic, presidio integrado a las rutas misionales del septentrión novohispano. A finales del siglo XVIII adquirió rango de villa con el nombre de Guadalupe del Pitic y, en 1828, fue rebautizada como Ciudad de Hermosillo. Con la fundación del estado de Sonora en 1831 obtuvo la capitalidad, la cual se consolidó de manera definitiva en 1879 y quedó jurídicamente confirmada con la Constitución de 1917.

Fig. 01. Localización geográfica del estado de Sonora (México). El punto indica aproximadamente la localización de la ciudad de Hermosillo. Elaboración propia con base en imagen detalle de Google Maps e información del compendio de aspectos geográficos sonorenses del Instituto Nacional de Estadística y Geografía (2022).
Como muchas otras poblaciones de los estados de la frontera norte mexicana, las sonorenses se desarrollaron en un ambiente de dispersión geográfica y cultural, primando valores de familia y comunidad, identificación con el territorio, y de labores primordialmente agrarias, teniendo en la iglesia local —con base en los principios de organización del urbanismo novohispano— uno de los principales espacios de significación identitaria. Sin embargo, la condición periférica dentro del virreinato se tradujo en una integración tardía al proyecto colonial, predominantemente misional antes que urbano, y en la modestia material y escala reducida de sus edificaciones religiosas, obras de jesuitas a partir de la última década del siglo XVI y de franciscanos comenzando la de 1770, en marcado contraste con los complejos desarrollos arquitectónicos del centro de la Nueva España. No obstante los obstáculos y las limitaciones de recursos, los esfuerzos misionales permitieron la conformación del obispado sonorense en 1779 (Enríquez 2002).
Entre 1913 y 1938, México experimentó campañas anticlericales radicales (De la Fuente 1997), que entre otros objetivos perseguían reducir la influencia socio-cultural —y por ende política— de la Iglesia entre la población, permanencias ideológicas de las luchas liberales del siglo anterior que durante el Congreso Constituyente de 1916-17 reclamaban los tratos discrecionales entre la jerarquía eclesiástica y el Estado mexicano (Pérez-Rayón 2004). El afán racionalista del Constituyente provocó la natural resistencia de la feligresía y el episcopado, incentivando —además del fervor devocional» la conformación de grupos de laicos cuyas acciones directas se expresaron en manifestaciones y disturbios (Soberanes 2017). Las represiones violentas contra los católicos en la posrevolución fueron constantes durante los mandatos de Álvaro Obregón (1920-24) y Plutarco Elías Calles (1924-28), pero la llamada Guerra Cristera o Cristiada (1926-29) fue el culmen del terror, con las persecuciones y los exilios de obispos y sacerdotes.
Si bien al arribo a la presidencia, Emilio Portes Gil (1928-30) encaminó las negociaciones que culminaron en el cese de las hostilidades, muchos cristeros insatisfechos siguieron en pie de lucha en los años subsecuentes, oponiéndose especialmente a las políticas posrevolucionarias como la educación pública de corte socialista, impulsada en la presidencia de Lázaro Cárdenas del Río (1934-40). A la postre, la Cristiada transformó la política mexicana al evidenciar conflictos entre laicos y jerarquía eclesiástica, y la inviabilidad del modelo Estado-Iglesia de la Constitución de 1917; forzó a los obispos a reorganizarse y autofinanciarse, y propició la formación de movimientos políticos de base católica y campesina, que dieron origen a los primeros partidos de oposición al régimen de la Revolución Mexicana.
Para el caso sonorense, es necesario considerar que, a diferencia del epicentro geográfico de los conflictos anticlericales que desencadenaron la Cristiada —los estados de Jalisco, Michoacán, Guanajuato, Colima y el sur de Zacatecas—, no fue sino hasta la década de 1930, durante la gobernatura de Rodolfo Elías Calles (1931-34) que se manifiestó la campaña desfanatizadora más enérgica, con las consabidas persecuciones de sacerdotes, cierre de templos y prohibición del culto público. La resistencia no se hizo esperar; y el paulatino fracaso de la campaña se explica en buena medida —además de las estrategias y resiliencia del propio clero— por la entusiasta participación de la feligresía femenina (Cejudo 2020). Con todo, dicha resistencia se antoja paradójica considerando que el obispo de Sonora, Juan Navarrete, [1] reconoció con frustración que desde la Cristiada buena parte de la población era más bien indiferente —incluso ingrata— para con la lucha del clero estatal, y apoyaba al gobierno (Cejudo 2021).
En 1936, de cara a las elecciones por la gobernatura del estado, el candidato del Partido de la Revolución Mexicana, Román Yocupicio Valenzuela, centró su campaña en la promoción de políticas orientadas a mejorar las condiciones de vida de los campesinos y a fomentar la agroindustria en la región; pero también en sus esfuerzos por desagraviar a los católicos sonorenses alentando un ambiente de concordia. Estas le valieron el triunfo para el periodo 1937-39, y con ello, el eventual retorno de los sacerdotes perseguidos o en exilio, iniciando así el llamado modus vivendi, el acuerdo tácito alcanzado hacia 1938 entre la Iglesia católica y el Estado mexicano para restablecer las relaciones de colaboración tras los conflictos anticlericales. En lo teológico-ideológico, buscó despolitizar al laicado, sustituir la resistencia por la caridad y restaurar el orden social cristiano, fundamentalmente, con base en la obediencia jerárquica.
Al iniciar la década de 1940, de los 364.271 habitantes registrados en Sonora, el 32,67% habitaban en entornos urbanos (Secretaría de Economía 1943). Pero los cambios en las políticas económicas, los emprendimientos industriales de apoyo a la construcción y a la agroindustria, las obras hidráulicas —presas y distritos de riego—, por mencionar las más relevantes, que tuvieron sus principales centros de operaciones en ciudades como Hermosillo y Obregón, provocaron un aumento en la tendencia durante la década citada, alcanzando el 45,32% de 570.607 habitantes en 1950 (Secretaría de Economía 1953). Además de los nacimientos, los procesos de migración, principalmente desde el campo, contribuyeron a esa tendencia, potenciada por expectativas de cambio en la calidad de vida además de las circunstancias económicas: una manifestación de reconocimiento de las ventajas de la «modernización» (Rodríguez 2009). Con el inicio de la administración estatal del gobernador Abelardo Rodríguez Luján (1943-48), en Hermosillo se emprendió una importante transformación urbana en materia de equipamientos educativos, obra vial e hidráulica, comercios, hostelería, e industrias, y se incentivaron las relaciones comerciales y turísticas con la región suroeste de Estados Unidos.
Este impulso urbanizador se mantendrá en las siguientes dos décadas, abonando al ya mencionado sentido de vida moderna, que sin embargo no afectó en lo sustancial a la identidad religiosa dominante, que «en el fondo, se asimila a las ideas de nación, orden y jerarquía social [que salvaguardan] valores patriarcales, nacionalistas, católicos y socialmente excluyentes» (Rodríguez 2009, 50-51). En 1940, el 97,65% de los sonorenses se reconocía como católico practicante, y para 1950 el porcentaje aumentó a 98,44%. En Hermosillo, en las mismas fechas, los datos resultantes fueron 98,25% y 98,44%, respectivamente (Secretaría de Economía 1943 y 1953).
Lo anterior permite ilustrar el contexto urbano y cultural en el cual, se desarrolló una activa comunidad de laicos para iniciar en 1940 un centro de catequesis y de acción pastoral dedicado a la devoción del Sagrado Corazón de Jesús, [2] en la confluencia de las barriadas populares Cruz Gálvez, Cementerio viejo, 5 de mayo y Cañada de los negros, en el extremo nororiente de la ciudad, y que avecindaban tanto a locales como a migrantes de poblaciones rurales de la sierra y el río Sonora, mayoritariamente de extracción humilde (Fig. 02). En este lugar, con un «tejabán con techo de lámina a manera de capilla» (Armenta 2010) se intentó, infructuosamente, la construcción de un templo.

Fig. 02. Aspectos de las barriadas del nororiente de Hermosillo (Sonora, México), ca. 1947.
Mientras, en 1943, con el trabajo conjunto de múltiples asociaciones de laicos alrededor de la figura del obispo Navarrete, se fundaron en los mismos rumbos la Sociedad Mutualista de Obrero de Sonora y el Centro de Espiritualidad María Auxiliadora, que además de brindar espacio para diversos servicios de culto y apostolado por parte de los sacerdotes de la catedral de la Asunción de María, ofrecía a los jóvenes la oportunidad de fomentar la lectura, las artes, y la práctica deportiva. La construcción de las instalaciones fue obra de los socios de la Mutualista y de los vecinos, con contribuciones en metálico y en especie para los materiales. Hacia 1947, por iniciativa de médicos fieles cercanos a los citados grupos, inició operaciones un dispensario médico, al que posteriormente se le acondicionó un quirófano; y ese mismo año se hizo pública la decisión de edificar un templo y de conformar una parroquia, la segunda en la ciudad, después de la Catedral (Armenta 2010) (Fig. 03).

Fig. 03. Catedral de Nuestra Señora de la Asunción, Hermosillo (Sonora, México), ca. 1944.
Los protagonistas de estos trabajos, además del obispo, fueron el presbítero Hermenegildo Rangel Lugo y la educadora Felicitas Zermeño. El primero siguió como seminarista a Navarrete en su último exilio en la década de 1930, fue párroco de la Catedral y vicario del obispado de Sonora (Editorial 1963), y organizó actividades para hacerse con los fondos para la adquisición del predio; y posteriormente, en los años que tomaron las obras, llevó el control contable y supervisó el avance de la edificación. La segunda fue veterana activista de las asociaciones ligadas a la orientación navarretiana (Cejudo 2021), y una de las principales colaboradoras en el María Auxiliadora, reconocida por la comunidad como «la principal impulsora en la construcción [del] Templo Parroquial» (Editorial 1963, 6).
El entusiasmo de Rangel por el crecimiento de la feligresía tras más de una década del modus vivendi, era patente cuando afirmaba que
el templo que nos proponemos hacer será grandioso [ya que] la fe de nuestro pueblo ha resurgido de tal suerte que los templos que hay en nuestra ciudad son incapaces de contener a los innumerables fieles que quieren cumplir con (...) la asistencia a misa (Armenta 2010).
El proyecto corrió a cargo del arquitecto José López Moctezuma Pineda y su hijo, el ingeniero civil José López Moctezuma Cumming, quien también llevó a cabo los cálculos estructurales y posteriormente dirigió las obras. [3] Éstas se iniciaron con la colocación y bendición de la primera piedra por parte de Navarrete el 8 de junio de 1950, Año Santo, [4] en la solemnidad de Corpus Christi, coincidiendo con el trigésimo primer aniversario de su ordenación como obispo, quien no pudo ocultar su asombro ante las dimensiones del templo trazadas en el predio (Armenta 1994). [5]
Las obras avanzaron poco a poco con la participación de la comunidad y las asociaciones de laicos, desde la continua recaudación de fondos hasta la eventual ayuda en las tareas de construcción, coordinados por el maestro de obra Plutarco Díaz. En junio de 1951, con los muros terminados, se llevó a cabo la velación del Sagrado Corazón de Jesús, y la primera misa se celebró en diciembre de 1954. Para 1955 —año en el que se colocaron los vitrales—, Navarrete dio su visto bueno al edificio el día 8 de noviembre; el costo de las obras hasta ese momento resultó en $539.552 (Rangel 1955). El decreto de erección de la parroquia se oficializó el 27 de octubre de 1957 (Fig. 04), [6] y en el documento se apuntó que el templo aún estaba en proceso de construcción (Acuña 1957). Finalmente, en 1959 el párroco Cruz Acuña y el vicario Arturo Torres encabezaron la campaña para hacerse de los fondos para concluir los trabajos constructivos y detalles pendientes de ebanistería y equipamiento, de mobiliario y la adquisición de implementos litúrgicos (Armenta 2010).

Fig. 04. Titularidad territorial urbana de la parroquia del Sagrado Corazón de Jesús (1957). P. Parroquia Sagrado Corazón de Jesús, C. Centro María Auxiliadora, 1. Catedral Nuestra Señora de la Asunción, 2. Capilla del Carmen, 3. Capilla del Espíritu Santo, 4. Capilla del Inmaculado Corazón de María, 5. Capilla de Santa Eduwiges, 6. Capilla de la Sagrada Familia. Elaboración propia con base en el plano regulador de la ciudad de Hermosillo, Departamento de Fomento y Obras Públicas, 1947.
La renovación de la arquitectura eclesiástica en el contexto de la emergencia del MoMo adoptó una suma dinámica de tradición, innovación cultural e integración plástica (Pérez 2015); los espacios tendieron a enfatizar cualidades sensoriales, donde la experiencia directa, la luz y la materia otorgan sentido y apertura simbólica, anteponiendo coherencia, simplicidad y autenticidad material, conectando tradición e innovación para superar formalismos o estilos impuestos (Gonçalves 2017); en otras palabras, se buscó «apelar a las facultades más elevadas del conocimiento humano [llegando] al máximo espíritu de síntesis en cuanto sistema operativo trasladado a la arquitectura» (Gil 1999, 145).
Para el caso mexicano, reiniciadas las relaciones políticas entre gobierno e Iglesia en la década de 1940, se hizo un llamado a los arquitectos a reflexionar sobre la histórica condición de cambio de la arquitectura sacra, adaptándose a cada época, tocando entonces el turno a la arquitectura contemporánea hacer oídos sordos a sus detractores y tomar acciones para la construcción de nuevos templos, implicando la polisemia del término: no solo de reciente factura, sino innovadores (Villagrán 1943).
Atendiendo a lo anterior, López Moctezuma procedió entendiendo el «modelo parroquial» (Flores 2002, 59 y 60) de la orientación navarretiana —conformado por las recomendaciones de culto, de organización parroquial y sobre la persona del párroco— y que abogó por principios rectores de austeridad, sencillez, orden y silencio como fundamento de la experiencia religiosa; estos no se alejan en esencia de los conceptos de diseño de los ensayos renovadores de la arquitectura moderna para el culto. [7] Se considera, entonces, que el arquitecto actuó en consecuencia, conformando un proyecto que sintetizó espacialmente la obra y persona del obispo, [8] sin menoscabo de las ventajas que suponía un diseño moderno en cuanto a tiempo de ejecución y presupuesto, en comparación con estilos historicistas tradicionales.
El proyecto del templo destaca la escala monumental (Fig. 05), y tradiciones de representación arquitectónica aparte, cierto sentido de confianza en cuanto a las capacidades futuras del edificio para fomentar la consolidación urbana del entorno. [9] Para la ejecución de la obra, se prescindió de los grandes volúmenes prismáticos laterales y posteriores, conservando los frontales, y con ello se dotó al edificio de un carácter de arquitectura sacra reconocible (Fig. 06), pero al mismo tiempo —desde el contexto de su concepción—, una apariencia totalmente desprendida de los elementos tradicionalmente asociados a los espacios de culto de la ciudad, con sus características compositivas y ornamentales de diversas escuelas estilísticas en la historia del arte virreinal y decimonónico. Y de hecho, no se podría culpar a quien señalase ciertas analogías formales entre el templo y el museo y biblioteca proyectado por los hermanos Salvador y Felipe Ortega una década atrás: composición simétrica, sobria geometría, volúmenes regulares intervenidos por vanos modulados donde la luz es la protagonista, sea para provocar reflejos y contrastes en sus elementos o para iluminar los interiores; o el uso de elementos de reminiscencia barroca en accesos secundarios en ambos casos, aunque solo ejecutados en el segundo (Fig. 07). [10]

Fig. 05. José López Moctezuma Pineda y José López Moctezuma Cumming, Templo del Sagrado Corazón de Jesús, Hermosillo (Sonora, México), 1950; proyecto.

Fig. 06. José López Moctezuma Pineda y José López Moctezuma Cumming, Templo del Sagrado Corazón de Jesús, Hermosillo (Sonora, México), 1950-59; vista norponiente.

Fig. 07. Salvador y Felipe Ortega Flores, Museo y Biblioteca del Estado de Sonora (hoy de la UNISON), Hermosillo (Sonora, México), ca. 1951.
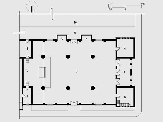
La planta (Fig. 08), concebida en las postrimerías de la liturgia preconciliar, siguió una composición basilical para alojar aproximadamente 300 fieles en orientación este-oeste, pero prescindiendo de transepto, donde los espacios litúrgicos y sus funciones son plenamente identificables, con el coro sobre el pórtico de acceso (Fig. 09-10). La diferencia de alturas entre la nave principal y las laterales es mínima, dando la apariencia de uniformidad, si bien el tratamiento de las trabes enfatiza la jerarquía espacial: con geometría regular en las segundas, y con perfiles más elaborados en la primera. El presbiterio, dominado por una imagen del Sagrado Corazón desde un austero retablo, está flanqueado por amplios nichos que muestran a la Virgen de Guadalupe y a san José con el Niño Jesús (Fig. 11).

Fig. 08. José López Moctezuma Pineda y José López Moctezuma Cumming, Templo del Sagrado Corazón de Jesús, Hermosillo (Sonora, México), 1950-59; planta arquitectónica. Aforo: 300 fieles. 1. Pórtico de acceso; 2. Nave (aprox. 427 m²); 3. Presbiterio; 4. Bautisterio (hoy bodega); 5. Confesionarios; 6. Bodega y acceso al coro (hoy nichos funerarios); 7. Sacristía; 8. Salón de ministros; 9. Patio de servicio; 10. Servicios parroquiales. Representación aproximada del estado original con base en levantamiento arquitectónico, 2025.

Fig. 09. Vista de la nave desde el ingreso.

Fig. 10. Vista del coro desde el centro de la nave.

Fig. 11. Vista del presbiterio.
La función de campanario proyectada para la torre norte se canceló en algún momento, y las campanas se adaptaron en la parte superior de la retícula de la fachada principal, a manera de espadaña (Fig. 12). Los ventanales laterales de las torres, que casi recorren la altura completa en las respectivas caras sur y norte, probablemente tenían el objetivo de permanecer iluminadas continuamente, fuera natural o artificialmente, sobresaliendo día y noche con sus aproximadamente 22 metros de altura; sin embargo, las condiciones de calor extremo y las adaptaciones espaciales posconciliares que reubicaron el bautisterio, llevaron a cubrir casi por completo los ventanales de la cara sur (Fig. 13), conservándose en la norte, que hoy aloja el servicio de nichos funerarios (Fig. 14).

Fig. 12. José López Moctezuma Pineda y José López Moctezuma Cumming, Templo del Sagrado Corazón de Jesús, Hermosillo (Sonora, México), 1950-59; vista de la fachada principal al poniente.

Fig. 13. Detalle de vidrieras casi totalmente cubiertas en la torre sur.

Fig. 14. Detalle de vidrieras desde el interior de la torre norte.
La casa cural —ahora salones parroquiales— y las oficinas, en segunda y primera plantas respectivamente, se ubicaron en la parte posterior del templo, al poniente (Fig. 15). Para Navarrete, el espacio de residencia del párroco debería representar la «casa del pueblo», debiendo ser «modesta [evitando] lo que sea de mero lujo, de refinamiento, y mera comodidad (...) abierta a todos, para arreglar negocios, para recibir socorros, para vigilar la conducta del sacerdote» (Flores 2002, 60). En atención a las indicaciones del obispo y exceptuando los usos litúrgicos, la apelación pro populo, considerando las características socioeconómicas del entorno, puede extenderse al conjunto completo.

Fig. 15. José López Moctezuma Pineda y José López Moctezuma Cumming, Templo del Sagrado Corazón de Jesús, Hermosillo (Sonora, México), 1950-59; vista nororiente.
Los materiales y procedimientos de construcción, aprovechando la efervescencia constructiva de la época, fueron los canónicos del Estilo Internacional en México: concreto armado para elementos de cimentación, estructura portante y losas; ladrillo de barro cocido enlucido en muros, tanto divisorios como de carga, con un recubrimiento al interior de la nave a media altura de terrazo o granito sintético (Fig. 16), material muy en boga en las décadas de 1940 y 1950; las cancelerías, de hierro y cristal, salvo en los emplomados.

Fig. 16. Vitral y confesionario oeste, mostrando el recubrimiento mural de granito artificial.
El arte plástico, conservador y sin pretensiones de integración arquitectónica, además de las figuras de bulto de rigor, se limitó a los vitrales y a un mural en el ex-bautisterio. Las devociones mostradas en las vidrieras sugieren modelos morales y de fe: san Isidro Labrador (altruismo y trabajo), san José (amor paterno, virtud y obediencia), san Cristóbal (patrono de viajeros y migrantes), y el Inmaculado Corazón de María (modelo ideal de maternidad, virtuosa y abnegada) (Fig. 17), entre otros. [11] En síntesis, los vitrales en conjunto ofrecen una narrativa modélica que abarca al individuo, la familia y la comunidad; si a lo anterior se agrega que los donantes fueron empresarios y asociaciones obreras, entre otros particulares y colectivos, de nuevo se manifiesta la idea de pueblo congregado en la parroquia.

Fig. 17. Vitral del Inmaculado Corazón de María.
El mural sobre la pila bautismal empotrada al muro poniente —ahora fuera de la vista pública—, muestra la representación del bautismo de Jesús, obra de Francisco Castillo, [12] que con un estilo de inspiración prerrafaelita enfatiza la jerarquía trinitaria (Fig. 18). Se evidencia la intención de un ambiente austero, plenamente iluminado desde el sur en un espacio contenedor que centra la atención en el ritual, en tanto que el acto sacramental se refuerza iconográficamente, cumpliendo su función doctrinal como pieza de arte sacro. Se hace así evidente el papel compositivo de la luz; el resultado final, por lo menos para los servicios diurnos, habría sido —de no haberse practicado las ventanas para ventilación debajo de los vitrales— una suerte de camera obscura, con los vitrales tomando un papel protagónico y quizás vistiendo la nave con una leve pátina encarnada desde las vidrieras tintadas en el coro.

Fig. 18. Mural en el ex-bautisterio (hoy bodega).
No se cuenta con información de archivo para dilucidar cuáles fueron, si las hubo, las fuentes de inspiración de López Moctezuma para el templo. Se ha sugerido que fue un homenaje al románico en su austeridad y conmemoración de la humildad crística, y/o que se trató de un ejercicio interpretativo de un espacio fabril reconocible para algunos de los fieles trabajadores en factoría textil cercana, utilizando algunos elementos cuidados de art-decó en columnas, trabes y en la imaginería de los vitrales (Armenta 2010). [13] En este orden de ideas, además de las ya presentadas sobre la probable representación edificatoria de la vida y obra de Navarrete, podrían agregarse la sugerencia de los grandes volúmenes prismáticos con la monumental cruz latina integrada a la fachada principal como símbolos de estabilidad y fortaleza en la fe; o como las columnas octagonales —en su base, fuste y capitel— cuya geometría que no se repite en ningún otro espacio o elemento del templo, parecen aludir al polígono resultante de la inscripción de un cuadrado (la tierra) dentro de un círculo (el cielo) unión estable entre lo divino y lo mundano (Fig. 19-20). Al final, la escala aun dominante del templo en el entorno inmediato, recortado contra el cielo, deviene en un símbolo en sí mismo.

Fig. 19. José López Moctezuma Pineda y José López Moctezuma Cumming, Templo del Sagrado Corazón de Jesús, Hermosillo (Sonora, México), 1950-59; detalle de capitel y fuste octogonal.

Fig. 20. Detalle de basamento octagonal de columna con recubrimiento de granito artificial.
El proyecto de país que emergió tras la promulgación de la Constitución de 1917 intentó recuperar el quizás más conspicuo principio liberal que el porfiriato había sacrificado en pos de acelerar la modernización —es decir, pacificar y reorganizar administrativamente la entonces joven nación—: la plena separación de Iglesia y Estado. Es de hacer notar que los conflictos más cruentos de la Cristiada fueron casi contemporáneos con la aparición de los primeros ejemplos del MoMo mexicano y, con las debidas pertinencias contextuales, en ambos casos se asistió a un enfrentamiento de lo nuevo contra la tradición. Con el modus vivendi se inició una tensa, pero a la postre, estable tolerancia entre las otrora antagonistas instituciones, y en ambos casos, con base en los principios proyectuales y constructivos del MoMo, se produjeron diversas obras que paulatinamente naturalizaron la nueva arquitectura como un ejemplo más de la riqueza cultural y artística mexicana en la posrevolución.
En el caso hermosillense, si bien las construcciones locales identificables con el MoMo se edificaron casi una década después que las obras pioneras en el centro del país, fueron también principalmente promovidas por el Estado, destacando ya en la quinta década del siglo los géneros educativo, de salud y de gobierno que, sin menoscabo de los personalísimos estilos de sus proyectistas, compartieron principios funcionales, constructivos y de composición geométrico-espacial, mismos que no tardaron en ensayarse en espacios comerciales, de servicios y habitacionales. Hacia 1950, la modernidad arquitectónica hermosillense estaba en boga.
El templo del Sagrado Corazón de Jesús, erigido en la coyuntura tanto del proceso de adopción sociocultural del MoMo así como del dinamismo pastoral navarretiano en el modus vivendi, más allá de homenajear al obispo, se plantea como un dispositivo arquitectónico para conmemorar la concordia entre Iglesia y Estado, instituciones hermanadas si se quiere, por medio de un estilo arquitectónico común. Lo anterior propone la posibilidad de que esta convergencia formal no fuera un resultado fortuito ni una simple coincidencia estética, sino una operación simbólica consciente mediante la cual la arquitectura moderna funcionó como lenguaje compartido, capaz de suturar visual y culturalmente una relación institucional marcada por décadas de confrontación.
Desde la experiencia de los fieles —especialmente de aquellos recién llegados a la capital—, permitió significar menos disruptivamente lo moderno, considerando que para los migrantes del interior del estado, avecindados en lo que a la postre se identificaría como la colonia 5 de mayo y habituados a los ritmos y escalas de habitabilidad predominantemente rurales, el templo fue probablemente su primer contacto con la habitabilidad recientemente adoptada, integrándose ellos también a la narrativa de la transformación urbana.
El templo resultó quizás demasiado moderno en su propuesta de austeridad espacial y material, ya que no supuso un modelo a seguir por otros proyectistas que se aventuraron en el género religioso siguiendo la gramática arquitectónica del MoMo. Por mencionar algunos casos próximos posteriores al Sagrado Corazón de Jesús, merecen atención los de Santa Eduwiges y la Santísima Trinidad, con disposición basilical preconciliar y una sola nave, respectivamente, además de sus particulares características morfológicas; o San Francisco de Asís, que presentó muchas de las disposiciones espaciales para la liturgia posconciliar.
Así, si bien con el tiempo tuvo el templo que adaptarse a los requerimientos posconciliares y ha sufrido otras modificaciones menores, [14] actualmente se encuentra en buen estado de conservación y continúa siendo el epicentro de una muy dinámica comunidad de fieles, al tiempo que articula los espacios de formación en la fe, de educación básica y de asistencia social que potenciaron su origen.
Urbanísticamente, el templo se implantó originalmente en un tejido de baja densidad y escala doméstica, donde su volumetría sobria pero dominante operó como hito de referencia y organizador espacial. Con el crecimiento posterior del barrio, esta condición se consolidó, manteniendo al edificio como nodo estructurante del entorno inmediato, pero que, en resumen, operó más como una experiencia singular y contextual que como un prototipo replicable, marcando un límite —más que una pauta— para la asimilación del lenguaje moderno en la arquitectura religiosa local. [15]
Acuña, Cruz. 1957. Libro de Gobierno no. 1, 27 de octubre, manuscrito. Archivo Parroquia del Sagrado Corazón de Jesús, Hermosillo.
Acuña, Cruz. 2019. Juan Navarrete. Medio siglo de historia sonorense. México: Jesús Acuña, editor.
Armenta, Armando. 1994. «La Parroquia del Sagrado Corazón De Jesús». En Marcha, 18 de mayo.
Armenta, Armando. 2010. «Orígenes de la parroquia del Sagrado Corazón de Jesús». Publicado el 10/07/2020. YouTube, 40:50. https://tinyurl.com/y8cnpv85
Cejudo, Elizabeth. 2020. «Acción colectiva y género. Mujeres contra la campaña desfanatizadora en Sonora (1932-1936)». Conjeturas Sociológicas 21: 160-179. Consultado el 06/01/2026, https://tinyurl.com/yc29eanv
Cejudo, Elizabeth. 2021. «‘Ingratos hijos de Sonora’. Conflicto entre la Iglesia y el Estado en una entidad del noroeste mexicano, 1926-1929». Región y sociedad 33: 1-22. https://doi.org/10.22198/rys2021/33/1506
Chávez, Armando. 2010. Juan Navarrete. Un hombre enviado por Dios. México: Porrúa.
De la Fuente, Gregorio. 1997. «Clericalismo y anticlericalismo en México, 1810-1938». Ayer 27: 39-65. Consultado el 06/01/2026, https://tinyurl.com/29yrv39d
El Católico. 1963. «Apuntes sobre el Padre Rangel», 24 de noviembre.
Enríquez, Dora. 2002. «Pocas flores, muchas espinas. Iglesia católica y sociedad en la Sonora porfirista». Tesis doctoral, El Colegio de Michoacán.
Flores, Luis. 2002. «La creación de parroquias en la ciudad de Hermosillo (1961-1970)». Tesis de maestría, El Colegio de Sonora.
Gil Giménez, Paloma. 1999. El templo del siglo XX. Barcelona: Ediciones del Serbal.
Gonçalves, José Fernando. 2017. «Sacred Spaces. Meaning, Design, Construction», Actas de Arquitectura Religiosa Contemporánea 5: 220-229. https://doi.org/10.17979/aarc.2017.5.0.5153
Jorquera, Ramón. 2002. «Los nacionalismos representados en el arte monumental de Hermosillo, 1934-1955». Tesis de maestría, El Colegio de Sonora.
Pérez Oyarzun, Fernando. 2015. «La renovación de la arquitectura eclesiástica en el siglo XX-XXI latinoamericano». Actas de Arquitectura Religiosa Contemporánea 4: 2-23. https://doi.org/10.17979/aarc.2015.4.0.5116
Pérez-Rayón, Nora. 2004. «El anticlericalismo en México. Una visión desde la sociología histórica». Sociológica 55: 113-152. Consultado el 06/01/2026, https://tinyurl.com/4y792jhf
Rangel, Hemenegildo. 1955. Libro de Ingresos y Egresos en el Templo del Sagrado Corazón de Jesús, iniciado el 8 de junio de 1950, manuscrito. Fondo Catedral de la Asunción, Administración Gobierno, Archivo Histórico de la Arquidiócesis de Hermosillo, Hermosillo.
Rodríguez, Ariel. 2009. «Secretos de la idiosincrasia. Urbanización y cambio cultural en México, 1950-1970». En Ciudades mexicanas del siglo XX. Siete estudios históricos, coordinado por Carlos Lira y Ariel Rodríguez, 19-57. México: COLMEX/UAM-A/CONACYT.
Secretaría de Economía Nacional. 1953. Séptimo Censo General de Población. 6 de junio de 1950. Estado de Sonora. México: Dirección General de Estadística. Consultado el 06/01/2026, https://tinyurl.com/jdm74udu
Secretaría de Economía Nacional. 1943. Estados Unidos Mexicanos. 6° Censo de Población 1940. Sonora. México: Dirección General de Estadística. Consultado el 06/01/2026, https://tinyurl.com/6s77m2cu
Soberanes, José Luis. 2017. «El anticlericalismo en el Congreso Constituyente de 1916-1917». Cuestiones Constitucionales 36: 199-241. https://doi.org/10.22201/iij.24484881e.2017.36.10864
Uribe, Jesús. 2001. Universidad de Sonora. El museo. Hermosillo: UNISON.
Villagrán García, José. 1943. «La Iglesia católica ante la arquitectura de época». Arquitectura México 14: 199-207.
Fig. 01-02, 04, 06, 08-20: Archivo Alejandro Duarte.
Fig. 03. Archivo Histórico de la Arquidiócesis de Hermosillo.
Fig. 05. Archivo Casa del Recuerdo Mons. Juan Navarrete y Guerrero.
Fig. 07. Archivo Histórico Universidad de Sonora.
[1] Juan María Fortino Navarrete
Guerrero, (Oaxaca, 1886 – Hermosillo, 1982). Se hacía llamar Fortino Guerrero
en tiempos de persecución. En 1919, fue consagrado como el XIV obispo de
Sonora, y posteriormente primer arzobispo de la arquidiócesis de Hermosillo,
siendo desterrado en tres ocasiones por causa de su ministerio entre 1914 y
1937. Su legado, además de su acción pastoral, abarcó la promoción de diversas
organizaciones de laicos, como círculos parroquiales, promovió la Acción
Católica de la Juventud Mexicana (ACJM) para la formación de jóvenes en el
estado, fundó centros de catequesis y formación religiosa, así como la
formación familiar, como el Movimiento Familiar Cristiano (MFC), y la Liga
Diocesana de Sonora, para la defensa de la libertad religiosa. Promovió también
la fundación de la Sociedad de Obreros Católicos, la Sociedad Mutualista de Obreros,
y la Liga de Temperancia para combatir el alcoholismo. Fundó diversos
hospitales y hospicios para ancianos, y se le debe el funcionamiento de 56
escuelas católicas, tanto primarias como secundarias, y una Escuela Normal para
formación de maestras, de la que egresaron 260 educadoras. En 1959, se dividió
la diócesis de Sonora en las de Obregón y de Hermosillo, siendo designado
arzobispo de la última por el papa Pablo VI. Se retiró a la vida privada en
1968; falleció a los 95 años. Desde 2012, está en proceso su causa de
beatificación.
[2] Esta advocación se debe a la santa
francesa del siglo XVII Margarita María de Alacoque considerada un modelo de
frugalidad, sacrifico y servicio, quien perteneció a la Orden de la Visitación
de Santa María; según la tradición experimentó apariciones de Jesús todos los
viernes primero de mes durante dos años, recibiendo el siguiente mensaje: «Mira
este corazón mío, que a pesar de consumirse en amor abrasador por los hombres,
no recibe de los cristianos otra cosa que sacrilegio, desprecio, indiferencia e
ingratitud, aún en el mismo sacramento de mi amor. Pero lo que traspasa mi
Corazón más desgarradamente es que estos insultos los recibo de personas
consagradas especialmente a mi servicio». Resulta sugerente considerar que tal
devoción haya sido idea del obispo Navarrete como una manera de conmemorar, en
el modus vivendi, la continuación de su compromiso pastoral a pesar de
las frustraciones e ‘ingratitudes’ que sufrió en sus años de exilio.
[3] José López Moctezuma Pineda (San
Luis Potosí, 1895 – Monterey, 1959). Egresado de la Escuela Nacional de
Arquitectura en 1924. Ocupó en dos ocasiones la presidencia de la Sociedad de Arquitectos
Mexicanos; la primera durante el periodo de 1934-35, y la segunda de 1940 a
1941. Durante su carrera ocupó diversos puestos directivos de carácter técnico
en instancias de infraestructura y equipamientos públicos. Tuvo su primer
contacto con Hermosillo en 1932, cuando proyectó la ‘Casa del Pueblo’ local, en
coautoría con el arquitecto Carlos Tarditi. Entre 1944 —año en que radica en
Hermosillo— y 1947 fungió como primer jefe de zona en Sonora del Comité
Administrador del Programa Federal de Construcción de Escuelas. Entre otros
trabajos, proyectó el edificio comercial Aguilar —conocido popularmente como
Bona— en 1946, y colaboró con el arquitecto Gustavo Aguilar en el proyecto del
Palacio Municipal de Hermosillo en 1948, con quien también proyectó el hospital
materno privado Santa Teresita —hoy desaparecido— en la década de 1950.
[4] El también llamado año jubilar
es un tiempo en que se conceden gracias espirituales singulares o indulgencias
a los fieles que cumplen determinadas condiciones, a imitación del año jubilar
de los israelitas mencionado en el Antiguo Testamento.
[5] Relata el Pbro. Mariano Hurtado, ex
párroco del Sagrado Corazón de Jesús, que el obispo «le jaló las orejas» a
Rangel por la escala del edificio, preguntándole inquieto «de dónde iba a sacar
a los fieles que llenaran tal espacio» (Armenta 2010).
[6] Con éste, el Sagrado Corazón de
Jesús asumía la titularidad parroquial de cinco entonces capillas urbanas
circunvecinas: Virgen del Carmen, Inmaculado Corazón de María, Santa Eduwiges,
Sagrada Familia, Espíritu Santo y otras de poblaciones rurales cercanas.
[7] Se trata del Plan General de
Organización Parroquial, sin fecha, recogido por Armando Chávez Camacho,
biógrafo de Navarrete, que glosa instrucciones y recomendaciones del obispo,
tanto desde el Código de Derecho Canónico del cardenal Pietro Gasparri de 1917
-casi coincidente con el arribo de Navarrete a Sonora-, así como también desde
sus experiencias, atendiendo al principio de la parroquia como centro
territorial jerárquico de la acción pastoral y doctrinal, cuya influencia
persistiría en la década de 1960 (Flores 2002).
[8] Apuntó el Pbro. Cruz Acuña, primer
párroco del Sagrado Corazón de Jesús, que Navarrete era «enemigo de la
suntuosidad y lo superfluo, más partidario de la sencillez evangélica»
procurando que los presupuestos parroquiales privilegiaran los servicios de
educación y asistencia social, y «por eso sus templos no dejarán huella en la
historia de la arquitectura». No obstante, calculó que en los últimos treinta
años de su mandato se edificó un templo por año (Acuña 2019).
[9] El apunte perspectivo del
anteproyecto de López Moctezuma es el único documento disponible hasta el
momento del proceso de diseño del templo. Navarrete conservó una fotografía de
la lámina en su estudio, quizás destacando con ello el valor fundacional de la
parroquia para con su obra pastoral en Hermosillo, y como homenaje a la
comunidad que hizo posible su erección.
[10] Conviene abundar en esta comparación
como muestra del impacto sociocultural de la arquitectura moderna en la época,
trayendo a colación la polémica que sostuvieron el arquitecto Felipe Ortega,
coautor del Museo y Biblioteca, y el periodista Fernando Juvera, al señalar
éste, cuando el anteproyecto del edificio se hizo público en 1944, que la
propuesta le parecía quizás demasiado transgresora, culturalmente ajena a la
tradición latina, y sugería, aprovechando la escala monumental, ofrecer un
estilo «eclesiástico-colonial» (Uribe 2001, 26-29 y 74-79).
[11] No se han podido identificar ni
autoría ni datos de fabricación de los vitrales; pero puede apuntarse que en
otras edificaciones -como la desaparecida Casa del Pueblo (1935), en cuyo
proyecto colaboró López Moctezuma, y el edificio de rectoría de la Universidad
de Sonora (1945), proyectado por Leopoldo Palafox— se colocaron vidrieras del
Taller de Emplomados Casa Montaña, de Torreón, Coahuila (Jorquera 2002). Así,
es probable que, en el caso del Sagrado Corazón de Jesús, se haya recurrido a
la misma factoría, con base en devociones sugeridas por Navarrete y/o Rangel.
[12] Oriundo del estado de Chiapas,
Francisco Castillo Blanco, arribó a Hermosillo hacia 1937 como docente de artes
plásticas en la Escuela Prevocacional e Industrial No. 10. En 1948, colaboró en
los trabajos de organización de la Escuela Libre de Artes Plásticas de la
Universidad de Sonora, espacio de origen del extensionismo institucional.
Trabajó con los arquitectos Ortega Flores modelando los escudos y portadas
barrocas del Museo y Biblioteca (1948). Pero especialmente célebres son sus
yesos de las diosas Minerva y Diana que se exhibían en el desaparecido Cine
Sonora (1947), proyectado por Gustavo Aguilar, y el vaciado de cemento de Caperucita
Roja y el Lobo, en la ex-guardería infantil y jardín de niños (1950), hoy
Radio UNISON.
[13] Se trata de Textiles de Sonora, S.A.
(1947), cuyas instalaciones se encontraban cuatro cuadras al norte del templo.
Según su biógrafo, desde sus inicios pastorales Navarrete fue un convencido de
la causa de la encíclica Rerum Novarum, apoyando abiertamente «los
principios de la Doctrina Social de la Iglesia y postuló (...) los legítimos
derechos de los obreros, entre ellos, la creación de sindicatos que los
representaran y lucharan por ellos» (Chávez 2010, 215).
[14] Además de las adecuaciones del
mobiliario litúrgico y de iconografía en el presbiterio, de la cancelación de uso
del coro y la apertura de ventanas debajo de los vitrales, se han instalado
diversos apoyos mecánicos de ventilación y acondicionamiento climático, y se
edificó un espacio para la exposición del Santísimo Sacramento, contiguo al
ex-bautisterio. El piso original de granito sintético se ha recubierto con
vitrocerámica; se ha construido una casa cural más extensa contigua al templo
y, por razones de seguridad, se han colocado rejas en el acceso principal y en
el lateral hacia la avenida Hermenegildo Rangel.
[15] El autor agradece al Pbro. Armando
Armenta, responsable del Archivo Histórico de la Arquidiócesis de Hermosillo y
a su equipo de colaboradoras, por las facilidades y apoyo brindados en la
investigación documental de este trabajo, así como al Pbro. Daniel Millán,
párroco del Sagrado Corazón de Jesús y al personal de su oficina
administrativa, por permitir el acceso al archivo parroquial y a los espacios
del templo para llevar a cabo los levantamientos arquitectónico y fotográfico.