Preservación del patrimonio arquitectónico moderno
El caso de la iglesia parroquial de Nuestra Señora del Rosario en Torrejón de Ardoz, de Francisco Coello de Portugal
Preservation of Modern Architectural Heritage
The Case of the Parish Church of Our Lady of
the Rosary in Torrejón de Ardoz, by Francisco Coello de Portugal
Rubén José Labiano Novoa · Universidad de Navarra · rlabiano.3@unav.es · https://orcid.org/0000-0003-0199-3932
Recibido: 04/12/2025
Aceptado: 17/02/2026
Fray Francisco Coello de Portugal (1926-2013), arquitecto español con diecisiete edificios catalogados actualmente en el registro del Docomomo, proyectó en 1974, la iglesia y el centro parroquial de Nuestra Señora del Rosario en Torrejón de Ardoz. Un proyecto sobrio, de tipo piramidal resuelto con gran solvencia. Casi cuarenta años después el edificio necesitaba una renovación y ampliación que generó un debate interno en la parroquia acerca de la oportunidad de su conservación o de su demolición en su totalidad o en parte. Se optó por su conservación integral, mejora y ampliación. Este artículo tiene la voluntad de explorar los valores de este proyecto y analizar las estrategias seguidas en la reforma para concienciar sobre el valor de este derecho colectivo, de la preservación y disfrute del patrimonio, y sobre los criterios que han guiado las intervenciones que se ha llevado a cabo en un proyecto que opta por mantener y ponderar los valores del proyecto original.
Coello de Portugal, Docomomo, iglesia, patrimonio arquitectónico, Torrejón de Ardoz.
Fray Francisco Coello de Portugal (1926–2013), a Spanish architect with
seventeen buildings currently listed in the Docomomo register, designed in 1974
the church and parish center of Our Lady of the Rosary in Torrejón de Ardoz. It
is a sober project of pyramidal form, resolved with great architectural skill.
Almost forty years later, the building required renovation and expansion, which
sparked an internal debate within the parish regarding whether it should be
preserved or partially or entirely demolished. The decision was made in favor
of its comprehensive conservation, improvement, and extension. This paper seeks
to explore the values of this project and to analyze the strategies adopted in
its renovation in order to raise awareness of the importance of this collective
right: the preservation and enjoyment of heritage. It also examines the
criteria that guided the interventions carried out in a project that chose to
maintain and enhance the values of the original design.
Architectural Heritage, Church, Coello de Portugal, Docomomo, Torrejón de Ardoz.
La preservación del patrimonio arquitectónico moderno y contemporáneo ha sido durante décadas un tema complejo y lleno de desafíos. La proximidad temporal de estas obras, su quizás aparente desnudez formal, unida en muchos casos a soluciones constructivas experimentales y, en ocasiones, a una falta de valoración social o institucional, han dificultado que numerosas edificaciones significativas del siglo XX alcancen una adecuada protección o una comprensión profunda de sus valores. Este artículo se propone analizar, desde un marco general, el caso de la iglesia parroquial de Nuestra Señora del Rosario en Torrejón de Ardoz (Madrid). El proyecto original fue realizado en 1974 por el arquitecto y fraile dominico Francisco Coello de Portugal por encargo del entonces arzobispado de Madrid-Alcalá. En 2016 se completó un proyecto de remodelación y ampliación firmado por otro arquitecto que optó por mantener y ponderar los valores del proyecto original. El resultado final ofrece un ejemplo especialmente sugerente de intervención respetuosa y consciente sobre el patrimonio.
Se busca, en definitiva, reflexionar sobre la necesaria preservación del patrimonio moderno y sobre la importancia de comprender estos edificios, no como objetos cerrados y definitivos, sino como organismos vivos, susceptibles de transformaciones que respeten su identidad profunda y prolonguen su relevancia cultural y comunitaria.
Mi interés por esta obra surgió de manera casual al revisar la copia del archivo personal de proyectos que el propio Francisco Coello de Portugal me había facilitado años atrás. Entre los abundantes documentos dedicados a arquitectura religiosa, llamó mi atención la iglesia parroquial de Torrejón. Al cotejar los planos originales con su situación actual mediante imágenes satelitales y fotografías localizadas en Google Maps, se hizo evidente que el edificio había sido objeto de una ampliación significativa, desarrollada con unos criterios de respeto y continuidad que me parecieron dignos de una observación más detallada.
El descubrimiento de esta ampliación, lejos de mostrar una ruptura con el proyecto original, invitaba a un análisis más profundo: ¿Qué estrategias se habían utilizado para ampliar un templo moderno sin traicionar su espíritu? ¿Qué valores del proyecto habían sido considerados fundamentales? ¿De qué manera la ampliación había influido en la percepción urbana del edificio y en su papel dentro de la comunidad parroquial? Estas preguntas forman el núcleo del presente texto.
Escribe Rafael Moneo (2017, 45-46) que:
Se tiende a pensar que la vida de los edificios concluye con su construcción y que la integridad de un edificio consistiría en mantenerlo exactamente como lo dejaron sus constructores. Esto reduciría dicha vida a la realidad consolidada de un preciso instante. En ocasiones se puede insistir en la conservación estricta de un edificio; sin embargo, eso significa, de algún modo, que el edificio ha muerto, que su vida —tal vez por razones justas e inteligibles— ha sido interrumpida violentamente. (...) Si la arquitectura se estableció con firmeza, permanecerá abierta a nuevas intervenciones que prolongarán indefinidamente la vida del edificio.
Su reflexión es crucial para evaluar una intervención en un edificio moderno: conservar no es congelar, y mucho menos convertir un edificio en un fósil arquitectónico. La verdadera conservación exige comprender qué elementos son esenciales, cuáles pueden reinterpretarse y cómo las nuevas necesidades de la comunidad pueden integrarse armónicamente.
Fray Francisco Coello de Portugal (1926-2013) fue un prolífico arquitecto y fraile dominico español cuya obra se extiende a lo largo de buena parte de la segunda mitad del siglo XX. Su presencia en el registro del Docomomo Ibérico con diecisiete edificios catalogados —tres de ellos templos— evidencia la relevancia de su aportación a la arquitectura moderna española. La arquitectura religiosa constituye el núcleo más singular de su producción: alrededor de cuarenta y cinco proyectos de iglesias, veintinueve de ellos construidos, junto con numerosas capillas vinculadas a colegios, residencias, conventos y comunidades religiosas.
Hablando de la fortuna crítica de determinados arquitectos —entre los que podría citarse a Coello—, José Manuel Pozo (2004, 17) afirma que:
Una cosa es conocer lo que proyectaron quienes han sido consagrados como maestros de la arquitectura española contemporánea por la crítica y los historiadores, y otra saber qué notas fueron dando carácter a la mayoría de la arquitectura que se hizo entonces, de la que deriva, con sus vicios y virtudes, la que se construye hoy, también mayoritariamente considerada. Ése era el sentido que podía tener estudiar nuestra arquitectura a través de figuras que, desde determinado punto de vista, podríamos llamar secundarias, aunque en muchos casos lo sean tan sólo si atendemos a la importancia que se les atribuye habitualmente en relación con el conjunto de la arquitectura española de ese periodo.
Ese carácter secundario se ajusta perfectamente al perfil de Coello; y aunque no fue algo buscado, desde luego sí que fue asumido sin esfuerzo, y cuadra bastante bien con su biografía y su condición de sacerdote dominico. Se da en Coello una deliberada búsqueda de oscuridad, de penumbra, de colocarse fuera del alcance directo de los focos, en los márgenes de la escena. Una oscuridad que procede más de un deliberado modo de estar presente en el mundo que de un inevitable resultado de la carencia de interés de sus trabajos. En todo caso, la obra de Coello de Portugal no ha pasado desapercibida y goza de una creciente y saludable fortuna crítica, ya que los escritos y publicaciones acerca de su obra han sido una constante en los últimos años en los foros de arquitectura. [1]
La iglesia parroquial de Torrejón no está catalogada en los registros del Docomomo, ni es una obra mayor en el conjunto de su trayectoria, pero tiene unos valores indudables. Guarda claras afinidades con otros templos del autor, y es fácilmente reconocible dentro de una específica familia de templos de la misma época y etapa creativa en la que destacan el de la parroquia de Santo Domingo de Guzmán, en Burgos (1972), la capilla del colegio Vistabella de las Dominicas, en Tenerife (1967-73) o el centro parroquial en Lobito, en la diócesis de Benguela, Angola (1974), no construido. En la práctica profesional de Coello la dinámica organizativa del estudio fue derivando por razones de eficacia y de convicción personal hacia la búsqueda de soluciones tipo, tanto en los aspectos tipológicos, como en los constructivos y estructurales. De este modo una vez lograda una solución satisfactoria, ésta se incorporaba al prontuario teórico del estudio y se repetía reiteradamente en los proyectos similares, estableciendo ‘familias de soluciones’ cada vez más depuradas. Como escribía el propio Coello «sigo con la misma idea hasta que no surja otra» (2005, 20).
Dos años después del fallido proyecto en Angola, Coello levanta en las afueras de Madrid este centro parroquial en un entorno entonces en plena expansión demográfica. Es interesante comprobar el grado de similitud y los puntos en común que se observan entre los dos proyectos, a pesar del abismo cultural que los separa. Podrían ser intercambiables sin excesivos problemas, e incluso el de Madrid, por su austeridad y severidad de formas, podría, de inicio, considerarse previsible para el entorno africano (Fig. 01).

Fig. 01. Francisco Coello de Portugal op, Centro parroquial de Compão-Lobito, Diócesis de Benguela (Angola), 1974; alzados.
El programa de Nuestra Señora del Rosario, en Torrejón de Ardoz, consta de iglesia y centro parroquial. Se organiza según la agrupación en planta de tres cuadrados de igual dimensión dispuestos en V (Fig. 02). En el vértice se sitúa la iglesia, con una nave principal alineada según la diagonal del cuadrado y ampliable lateral y simétricamente por sus lados mediante las adiciones de los otros dos cuadrados, destinados a usos complementarios (salas de conferencias y celebraciones). Tras el altar, otro cuadrado alberga la residencia parroquial con los despachos y la sacristía, enlazado en macla con el presbiterio, generando una trama modular de cuadrados yuxtapuestos o superpuestos. El presbiterio se coloca enfrentado con la entrada en los extremos de la diagonal, achaflanando los vértices para favorecer su implantación. Dos ‘muros de confesionarios’ delimitan lateralmente la nave y resuelven los aseos, los accesos laterales secundarios y la conexión con la sacristía.

Fig. 02. Francisco Coello de Portugal op, Nuestra Señora del Rosario, Torrejón de Ardoz (Madrid), 1974; planta.
Las cubiertas presentan variaciones: son sensiblemente horizontales en los anexos de conferencias y celebraciones y a dos aguas en la nave principal, con sección ascendente hacia el altar según la diagonal y culminando en un lucernario cenital que ilumina el presbiterio desde lo alto. El templo mantiene un pulso general —según la diagonal— ascendente hacia el altar. Esta diagonal se convierte en un vector de movimiento, de ascensión y de orientación simbólica (Fig. 03).

Fig. 03. Francisco Coello de Portugal op, Nuestra Señora del Rosario, Torrejón de Ardoz (Madrid), 1974; secciones.
La solución de cubierta a base de planos plegados responde al momento creativo en el que se hallaba Coello. Desde 1964 había empezado a experimentar y a aplicar las soluciones de cubierta a base de cascarones laminares en la línea de Félix Candela, alternándolos a partir de 1966 con las soluciones de planos plegados, leve y geométricamente plegados o directamente facetados. Si bien estaba fascinado por las soluciones de cubiertas laminares por lo que tienen de economía de medios y por los resultados plásticos de convergencia y ascensión formal —tan gratos para el diseño de las iglesias—, no era ajeno a los problemas técnicos derivados de la imposibilidad de realizar unas impermeabilizaciones y aislamientos de suficiente calidad. En ese contexto, la solución de plegados le aporta una solución técnica más contrastada dentro de las mismas aspiraciones simbólicas de convergencia y ascensión formal.
Las soluciones constructivas que se utilizan en este caso se inscriben plenamente en el universo tipológico de Coello: muros de bloque de hormigón visto en las dos caras. En los muros de la iglesia utiliza un bloque especial, con la cara exterior facetada en dos planos que conforman una arista, aportando una textura especial a los paramentos muy querida por él y que había utilizado otras veces en el caso de aparejos de bloque de hormigón. El resto de los muros, también en bloque de hormigón, se construyen sin especiales formalizaciones en su aparejo (Fig. 04).

Fig. 04. Francisco Coello de Portugal op, Nuestra Señora del Rosario, Torrejón de Ardoz (Madrid), 1974; alzados.
Las cubiertas del conjunto se plantean con Uralita Canalonda, en plegados de gran tamaño, montadas sobre estructura metálica con soportes embebidos en los muros y una base de aislamiento térmico con recubrimiento interior visto de madera, en el caso de la iglesia.
En el interior se repiten otros detalles-tipo de Coello, como el diseño de los confesionarios, embutidos dentro del muro, o los de carpinterías.
Una arquitectura a la que Javier Carvajal —compañero de promoción de Coello— definía como haciendo honor
a un racionalismo inteligente y eficaz (no formal o teórico), nacido de la meditación sobre la relación que debe existir entre el fin al que cada construcción se destina y la naturaleza del espacio que lo soporta, que se traduce no sólo en belleza sino también en armonía con los medios económicos y técnicos de que se dispone. Es así como la belleza nace de la verdad que se persigue y no del capricho arbitrario de una solución que es suma de decisiones incoherentes, previas. A lo que se añade una construcción lógica y eficaz, adecuada a la imagen expresiva a la que se pretende atender y en armonía con la sugerencia que ofrecen las distintas circunstancias del emplazamiento donde sus obras dejarán la huella de una voluntad inicial, configurante de belleza y coherencia (Carvajal 2001, 259).
Sus proyectos subrayan el énfasis estructural y constructivo; querrían ser poco más que unas estructuras desnudas en las que vivir. En el deseo de este racionalismo reductor, las instalaciones son subordinadas a la estructura; sus obras, de alguna manera, son meros esqueletos sin vísceras. Hay una deliberada reducción en la paleta de materiales y de soluciones supeditada a una claridad espacial y a un racionalismo austero, pero profundamente poético (Fig. 05).

Fig. 05. Francisco Coello de Portugal op, Nuestra Señora del Rosario, Torrejón de Ardoz (Madrid), 1974; construcción.
Tras el análisis del edificio, vale la pena detenerse a estudiar el emplazamiento de la iglesia en su entorno.
Fue construida en medio de un pequeño parque entre dos desarrollos urbanos —los barrios del Rosario y del Parque de Cataluña— junto a la avenida de circunvalación (Fig. 06). El parque tiene forma de triángulo obtusángulo isósceles, una suerte de ala delta orientada de norte a sur, y está encintado por aceras. El plan parcial de la zona contemplaba la ubicación de la iglesia en la parte aguda del triángulo y orientada al este.

Fig. 06. Francisco Coello de Portugal op, Nuestra Señora del Rosario, Torrejón de Ardoz (Madrid), 1974; plano de situación.
Frente a ello, Coello opta por una implantación clásica, en el centro del parque y alineada sobre el eje norte sur del triángulo, en perfecta simetría. Una implantación ajena de inicio a sus modos habituales de colocarse sobre el terreno, caracterizados por un mayor dinamismo. Con ello buscó convertir al templo en un marcador urbano, un hito visible y reconocible dentro del nuevo tejido residencial. La iglesia ocupa el centro del parque y Coello, en una aparente contradicción, la rodea y cierra con un seto de jardinería que acota la iglesia, creando un recinto dentro del recinto del parque.
Aunque la decisión pudo responder a necesidades de delimitación de propiedad o de seguridad, los documentos del archivo de Coello revelan una voluntad de crear un ámbito con identidad propia rodeando la iglesia, una suerte de claustro invertido que anticipa las transformaciones futuras. Se conservan varias opciones de cierre, una de ellas —la del plano «Solución 1 de cerramiento», de 1977— (Fig. 07) propone una forma blanda, sensiblemente circular, rodeando la iglesia, una especie de negativo de un claustro, similar a lo que se hará cuarenta años más tarde.

Fig. 07. Francisco Coello de Portugal op, Nuestra Señora del Rosario, Torrejón de Ardoz (Madrid), 1977; plano de cerramiento.
Hacia el año 2003, casi treinta años después de su construcción, el edificio necesitaba una renovación de sus instalaciones, se había quedado pequeño para dar servicio a una población que había crecido mucho y demandaba mayores espacios, tanto en la iglesia como en el centro parroquial. Así pues, se comenzó a hablar de un nuevo proyecto de ampliación y renovación. El proyecto de reforma se puso en marcha en el año 2006, las obras arrancaron en 2013 y tres años más tarde se reinauguró la iglesia parroquial según el proyecto de reforma y ampliación del arquitecto local Javier Hernández Romero. El templo alcanzó una superficie de 1.100 metros cuadrados, frente a los 700 que tenía anteriormente.
Según cuenta el propio arquitecto en un texto publicado en la hoja parroquial (2016), se generó un debate interno en la parroquia acerca del mantenimiento del edificio existente.
Hasta tal punto, que cuando se consideró la conveniencia, o no, de demolerlo, a pesar de lo obsoleto que se encontraba, de la suciedad, de las goteras, de las grietas, del frío y de la falta de locales, vosotros [los parroquianos] dijisteis: NO, esta es nuestra parroquia. En el fondo, el edificio había, durante 40 años, dado MUCHO con POCO. Era (...) necesario preservar la ESENCIA de un lugar en el que la comunidad se había sentido cercana al Señor. El edificio se conservaría y crecería para albergar nuevas dependencias, con la misma fórmula, materiales y sistemas constructivos con los que fue concebido.
Es en esta decisión sobre los criterios que han de guiar la intervención —reconociendo, respetando y ponderando los valores del proyecto original— en donde se apoya la clave de lo que considero una actuación exitosa.
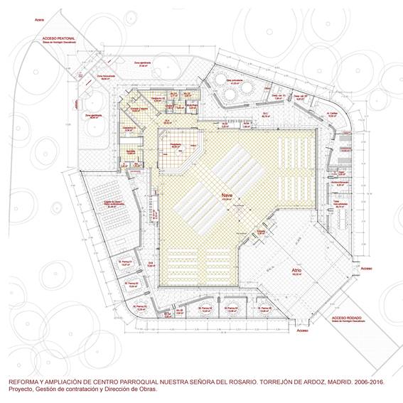
El proyecto de reforma y ampliación comienza por fundir en un solo espacio la iglesia y las salas anexas de conferencias y eventos. Del cuadrado inicial se pasa a tres cuadrados que triplican la superficie de la nave de la iglesia. Un cuarto cuadrado ochavado conforma el atrio exterior de acceso (Fig. 08). La estructura de las salas de eventos se modifica para eliminar los apoyos interiores y se elevan sus cubiertas planas para formar dos nuevas pirámides, generando una composición armónica de tres cuerpos principales piramidales más un cuarto sobre el atrio (Fig. 09). Esta solución se justifica desde la necesidad de permitir la entrada de luz natural en los nuevos espacios y potenciar la espacialidad del conjunto caracterizado por las diagonales en planta y en sección. Se podría —quizá— argumentar que la claridad diagonal del conjunto y su tensión ascendente hacia el altar se desvirtúa de alguna manera al hacer que las nuevas pirámides miren hacia los distintos puntos cardinales, sin una clara jerarquía espacial y sin un claro control de las entradas de luz.

Fig. 08. Javier Hernández Romero, ampliación de la iglesia parroquial de Nuestra Señora del Rosario, Torrejón de Ardoz (Madrid), 2006-16; planta de reforma y ampliación.

Fig. 09. Javier Hernández Romero, ampliación de la iglesia parroquial de Nuestra Señora del Rosario, Torrejón de Ardoz (Madrid), 2006-16; alzados y secciones.
El acceso principal al templo se desplaza hacia el nuevo atrio, y los cuatro soportes originales que delimitaban el acceso anterior se mantienen exentos en el interior de la nave, rodeando la nueva posición de la pila bautismal. Se dota así al edificio de un nuevo simbolismo asociado al bautismo como vía de acceso a la iglesia, y se señala también el lugar geométrico de convergencia espacial de las tensiones en diagonal de las cubiertas y del eje de simetría de los accesos con la secuencia puerta-bautismo-altar (Fig. 10).

Fig. 10. Javier Hernández Romero, ampliación de la iglesia parroquial de Nuestra Señora del Rosario, Torrejón de Ardoz (Madrid), 2006-16; baptisterio.
Desde el exterior se perciben tres pirámides coronando el templo más una cuarta cubriendo el atrio. El conjunto gana en armonía y ligereza y refuerza su condición de icono urbano (Fig. 11). Por la noche, las nuevas aperturas laterales de luz entre las cubiertas y el cerramiento funcionan como un faro, y sobre el altar y el Cristo, un lucernario recuperado enfatiza su simbolismo. Las tres pirámides de la nave de la iglesia se interpretan simbólicamente como alusión a la Santísima Trinidad.

Fig. 11. Javier Hernández Romero, ampliación de la iglesia parroquial de Nuestra Señora del Rosario, Torrejón de Ardoz (Madrid), 2006-16; vista general.
El resto del programa parroquial se centrifuga perimetralmente en un anillo exterior, de menor altura que la iglesia, a la que rodea, sirve de plinto y genera un espacio intersticial a modo de claustro, cubierto de vidrio transparente, entre la nave y el centro parroquial. La capilla de diario queda integrada en ese nuevo anillo. Un acceso independiente al centro parroquial se propone en el eje de simetría del conjunto, en el lado opuesto al principal (Fig. 12).

Fig. 12. Javier Hernández Romero, ampliación de la iglesia parroquial de Nuestra Señora del Rosario, Torrejón de Ardoz (Madrid), 2006-16; fachada posterior.
Este tipo de iglesia con deambulatorio perimetral no es muy frecuente; pienso por ejemplo en la ermita de Eunate, en Navarra, y su singular deambulatorio octogonal con referencias a la explanada del Templo en Jerusalén. O en el deambulatorio de la iglesia-fortaleza de Ujué, también en Navarra. Es posible su equiparación a la condición de lugar de peregrinación, de lugar al que se llega. En todo caso, establece un filtro, una corona exterior que subraya la centralidad del templo.
Es interesante señalar que está corona o anillo perimetral de la iglesia es a la que nos hemos referido al hablar de las opciones de cerramiento o vallado perimetral que estableció Coello al proponer la formalización del seto verde alrededor de la iglesia. Existía ya en el proyecto inicial esa voluntad de contar con un espacio propio envolviendo el templo. El nuevo proyecto ha ocupado ese espacio, lo ha colonizado con el programa, pero respetando inequívocamente esa condición de deambulatorio (Fig. 13).

Fig. 13. Javier Hernández Romero, ampliación de la iglesia parroquial de Nuestra Señora del Rosario, Torrejón de Ardoz (Madrid), 2006-16; detalle del nuevo claustro.
La paleta de materiales empleada en el proyecto es similar a la existente, con los lógicos ajustes necesarios para mejorar el confort y la habitabilidad. El material dominante del cerramiento exterior es el bloque de hormigón, similar en tono al existente y con un aparejo convencional, respetando la singular exclusividad del aparejo de la iglesia.
Las cubiertas se resuelven con zinc plegado, en lo que supone una clara mejora en la solución constructiva.
El respeto por la textura y cromatismo originales confiere al conjunto una gran unidad visual, mientras que las nuevas soluciones aportan durabilidad y eficiencia energética.
Parafraseando a Victoriano Sainz (2020), cuando elige la imagen del vino y los odres refiriéndose a las intervenciones sobre el patrimonio religioso, vino nuevo sobre odres viejos, se podría decir que se ha logrado en este proyecto una adecuada intervención de vino nuevo en odres nuevos.
No es, pues, por la vía de la mera adecuación a las exigencias de una correcta celebración del rito como haremos una arquitectura religiosa que responda a nuestro tiempo; siendo esto necesario, se requiere sobre todo que seamos capaces de conectar con los valores más profundos e intemporales de la arquitectura, ligados a cuestiones tales como la construcción, los materiales, la proporción o la luz, y no sólo al lenguaje o al estilo. Sólo transitando estos caminos llegaremos a hacer una arquitectura religiosa verdaderamente contemporánea (Sainz 2020, 213).
Desde el reconocimiento y el respeto al proyecto original de 1974, la ampliación de Javier Hernández Romero logra actualizar las funciones del templo sin desvirtuar su identidad arquitectónica ni simbólica. Una estrategia proyectual no carente de ambición, que ha sabido encontrar los mecanismos adecuados para resolver el programa de un modo que se sabe, por un lado, deudor de la comunidad a la que sirve, y por otro, deudor de una figura —la del arquitecto Coello de Portugal— que supo en su momento dar una respuesta medida y adecuada al contexto social específico y al lugar en el que tuvo que actuar, y de esta forma, ganarse de los parroquianos un reconocimiento mantenido en el tiempo. El resultado es una obra que prolonga la vida del edificio según la idea de Moneo —«si la arquitectura se estableció con firmeza, permanecerá abierta a nuevas intervenciones que prolongarán indefinidamente la vida del edificio» (2017, 46)—, y que honra tanto al autor original como al arquitecto contemporáneo.
Como afirmaba Javier Carvajal, «cuando la Arquitectura recobre su lenguaje y estructura de servicio, será valorada como tal, y recuperará su papel de signo de la sociedad» (1998, 19). La obra de Coello de Portugal se revela así como un ejemplo paradigmático de arquitectura moderna, sensible al contexto, donde la claridad estructural se combina con la carga espiritual del espacio.
En el equilibrio vivido a lo largo de la vida de Coello entre su doble condición de dominico y arquitecto, entre sacerdote y arquitecto ha habido siempre un mutuo intercambiarse de los papeles. Se sabe sacerdote y dominico para siempre y quiere ser arquitecto para siempre. En las dudas que experimentó en su vida acerca de cómo compaginar las dos vocaciones en una, de alguna manera presentía que una lleva a la otra; extendiendo hasta el final la labor arquitectónica, justifica y da sentido a su labor sacerdotal: una y otra se funden, dando sentido y cerrando el ciclo de toda una vida.
En términos de brillo humano, de éxito mundano, Paul Valéry nos recuerda que «la gloria no depende del esfuerzo, que generalmente es invisible; sólo depende de la puesta en escena» (1936, 141-142). Realizar una arquitectura anónima —como pudiera ser de inicio la que nos ocupa— no es lo mismo que carecer de fuerza, pues Coello derrochaba entusiasmo y solvencia. Está hecha sin miedo al fracaso y sin la obsesión por el éxito: «no quiero ser interesante, quiero ser bueno», explicaba Mies van der Rohe (Puente 2006, 56).
La arquitectura de Coello de Portugal es una arquitectura intensa, que llega hasta las últimas consecuencias en sus planteamientos, comprometida con una idea de modernidad, asociada a una concepción de buena nueva que ha de ser transmitida. Nos recuerda aquella pregunta que planteaba Andrea Longhi en el III CIARC sobre arquitectura y evangelización:
Deberíamos preguntarnos, en primer lugar, cómo y de qué manera la arquitectura cristiana fue históricamente pensada, diseñada, descrita e interpretada como un instrumento de evangelización. (...) Son raras las voces que invitan a considerar —en términos más amplios— la dimensión evangelizadora y simbólica de los complejos parroquiales y de los lugares del encuentro cristiano, entendiéndolos como espacios para la comunicación y la transmisión de la fe (2013, 5-6).
Hay un cierto sentido misional en la labor profesional de Coello, también acorde con aquella generación de posguerra y entrecruzado, en su caso, con su papel añadido ante la comunidad como predicador. Y de alguna manera su legado persiste en la comunidad que lo habita y en una arquitectura —la suya— que, desde una sobriedad radical, supo aspirar a la trascendencia y que una comunidad supo valorar, reconocerse en ella, mantener y extender.
Carvajal Ferrer, Javier. 2001. «Epílogo», en Fray Coello de Portugal, dominico y arquitecto, editado por Esteban Fernández-Cobián, 259-265. Madrid: Fundación Antonio Camuñas/San Esteban.
Coello de Portugal, Fray Francisco. 2005. La arquitectura, un espacio para el hombre. Pamplona: T6) Ediciones
Fundación Docomomo Ibérico. 2025. «Fray Francisco Coello de Portugal Acuña». Consultado el 03/10/2025, https://docomomoiberico.com/autoria/fray-francisco-coello-de-portugal-acuna/
Hernández Romero, Javier. 2016. La Buena Noticia (Boletín de la Parroquia de Nuestra Señora del Rosario, Torrejón de Ardoz, Madrid) 17: 15.
Labiano Novoa, Rubén José. 2016. «Los 60 años de arquitectura de Fray Francisco Coello de Portugal (1953-2013)», Tesis doctoral, Universidad de Navarra.
Longhi, Andrea. 2013. «Construir iglesias más allá de la arquitectura religiosa: evangelización y arquitectura». Actas de Arquitectura Religiosa Contemporánea 3: 1-25. https://doi.org/10.17979/aarc.2013.3.0.5078
Moneo Vallés, Rafael. 2017. La vida de los edificios: la mezquita de Córdoba, la lonja de Sevilla y un carmen en Granada. Barcelona: Acantilado.
Pozo Municio, José Manuel. 2004. «Hay otra historia», en Los Brillantes 50 - 35 proyectos, coordinado por José Manuel Pozo Municio, 17-40. Pamplona: T6) Ediciones.
Puente Rodríguez, Moisés, ed. 2006. Conversaciones con Mies van der Rohe. Certezas americanas. Barcelona: Gustavo Gili.
Sainz Gutiérrez, Victoriano. 2020. «El vino y los odres. La intervención de J.I. Linazasoro en la iglesia de Valdemaqueda (Madrid)». Actas de Arquitectura Religiosa Contemporánea 7: 212-223. https://doi.org/10.17979/aarc.2020.7.0.6339
Valéry, Paul. 1936. Variété III. Buenos Aires/Madrid: Gallimard.
Vicens y Hualde, Ignacio y Rafael Llano Sánchez. 1998. «Entrevista a Javier Carvajal. La arquitectura debe recuperar el misterio», Nueva Revista 58: 13-29.
Fig. 01-07. Archivo del arquitecto Fray Coello de Portugal.
Fig. 08-13. Archivo del arquitecto Javier Hernández Romero.
[1] Un estudio exhaustivo de las publicaciones acerca de Coello de Portugal y su obra figura en mi tesis doctoral «Los 60 años de arquitectura de Fray Francisco Coello de Portugal (1953-2013)», defendida en la Escuela Técnica Superior de Arquitectura de la Universidad de Navarra en enero de 2016.