La capilla de Picote
Arquitectura y paisaje
DOI:
https://doi.org/10.17979/aarc.2026.13.13363Palabras clave:
arquitectura religiosa, Nunes de Almeida, paisaje, Picote, PortugalResumen
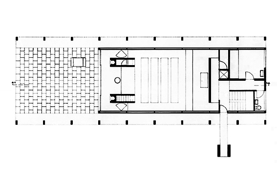
Este texto se propone examinar la Capilla de Nuestra Señora de Fátima en Picote (1956–59), proyectada por el arquitecto Nunes de Almeida (1924–2014), a la luz de su relación con el paisaje, la arquitectura y la finalidad religiosa. Concebido como equipamiento-ancla en un asentamiento que prestaba servicio a la presa homónima (1953–59), el proyecto, aunque fundamentado en un orden estructural clásico, es radicalmente moderno, evocando simultáneamente a Asplund y a Mies van der Rohe. A través de su estructura de pórtico y peristilo, que articula y cobija axialmente el atrio, la nave y el altar en secuencia, se establece una clara oposición entre el espacio abierto de celebración —que media la relación entre el ser humano y la naturaleza— y el espacio recogido destinado a la relación entre el ser humano y Dios. Es precisamente en este punto donde, sostengo, la Capilla de Picote alcanza tanto su sentido como su inesperada originalidad. El paradoja litúrgica resultante es a la vez desafiante y sugerente.
Descargas
Referencias
Barreto, Costa. 1960. «Uma exposição de Arte Sacra Moderna no Porto, Lisboa». Colóquio. Revista de Artes e Letras 8: 12-15.
Fernandes, Fátima. 2015. «A Arquitectura na Construção da Paisagem. Ferramentas e Princípios dos Projetos do Douro Internacional (1953-1964)». PHD dissertation, Polytechnic University of Madrid.
Fernandes, Fátima & Michele Cannatà. 1997. Moderno Escondido: Arquitectura das Centrais Hidroeléctricas do Douro 1953-1964. Picote, Miranda, Bemposta. Porto: FAUP Publicações.
Vasco Ferreira, Pedro. 2007. «La Capilla de Picote», Actas de Arquitectura Religiosa Contemporánea 1: 258-265. https://doi.org/10.17979/aarc.2007.1.0.5029
Machado, António. 1912. Proverbios y cantares. Campos de Castilla. Sevilla: Renacimiento.
Schiller, Friedrich. 2017 (1793). The Sublime, Madrid: Casimiro.
Tostões, Ana. 1997. Arquitetura Moderna Portuguesa 1920–1970. Lisboa: IPPAR.
Universidade do Porto. 2025. «U. Porto - Antigos Estudantes Ilustres - Nunes de Almeida». Sigarra.up.pt. Accessed January 9, 2026, https://tinyurl.com/4akmyn9y
Vieira Ferreira, Manuel. 2007. «La renovación de la arquitectura religiosa en Portugal durante el siglo XX», Actas de Arquitectura Religiosa Contemporánea 1: 250-257. https://doi.org/10.17979/aarc.2007.1.0.5028
Descargas
Publicado
Número
Sección
Licencia
Derechos de autor 2026 Actas de Arquitectura Religiosa Contemporánea

Esta obra está bajo una licencia internacional Creative Commons Atribución-NoComercial-CompartirIgual 4.0.










